EasyManua.ls Logo

Panasonic S-36PY1E5 - Page 554

Panasonic S-36PY1E5
739 pages
To Next Page IconTo Next Page
To Next Page IconTo Next Page
To Previous Page IconTo Previous Page
To Previous Page IconTo Previous Page
Loading...
3-14
3
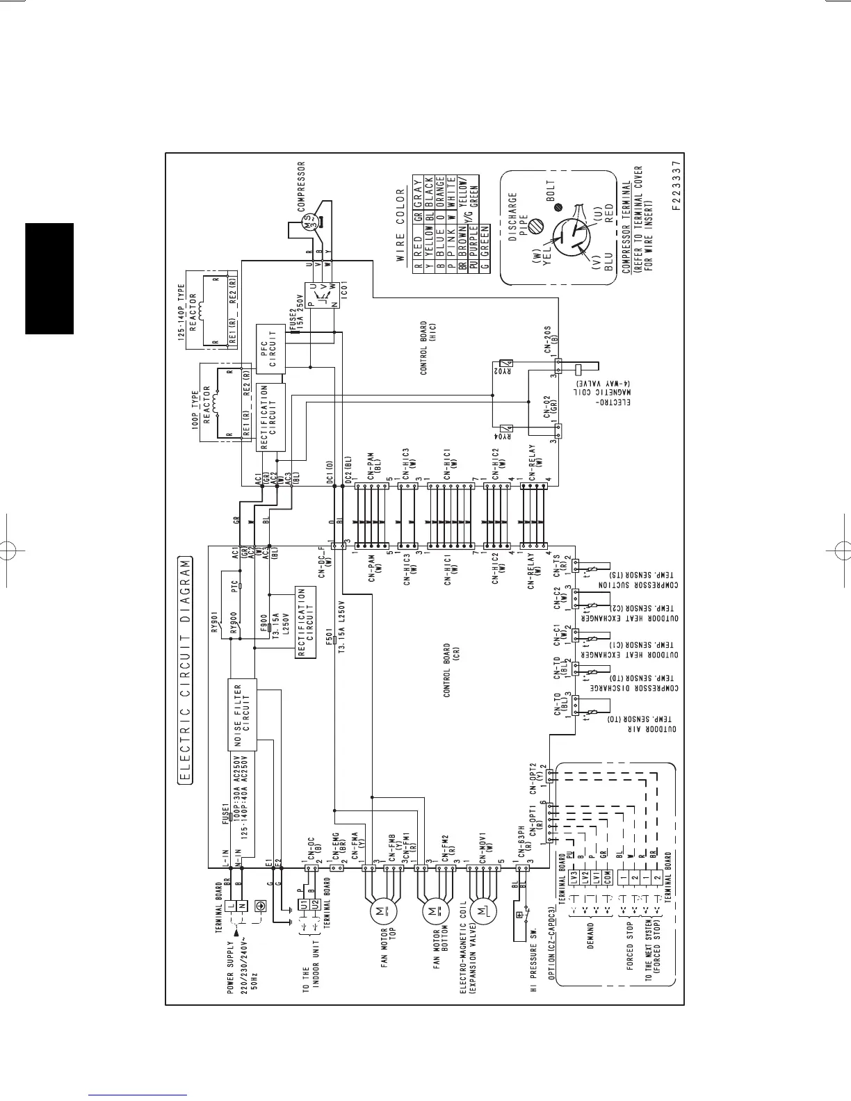
3-2. Outdoor Units
Single-phase U-100PE1E5 / U-125PE1E5 / U-140PE1E5
SM830211-05PAC-i.indb11 2012/10/100:32:28
SM830211-07PAC-i.indb14SM830211-07PAC-i.indb14 2013/07/1714:07:092013/07/1714:07:09

Table of Contents

Other manuals for Panasonic S-36PY1E5

Related product manuals