EasyManua.ls Logo

Panasonic S-36PY1E5

Panasonic S-36PY1E5
739 pages
To Next Page IconTo Next Page
To Next Page IconTo Next Page
To Previous Page IconTo Previous Page
To Previous Page IconTo Previous Page
Loading...
8-20
8
1. Turn the #1 DIP switch [S003] on the receiver’s PCB from OFF to ON and operate the wireless remote control with its
Start/Stop button.
2. During a test run, all display lamps on the display will light up.
3. During a test run, it is not possible to adjust the temperature.
4. After completing a test run, be absolutely sure to turn the #1 DIP switch from ON to OFF and make sure none of the display
lamps are blinking. Also, replace the PCB cover back as it was and fasten it; while holding the wiring with the cable clamp,
tighten its screw.
4. Test Operation
Implementing a Test Run
When more than one receiver and remote control are installed in the same room, setting up addresses allows them to avoid
interfering with each other.
Refer to the Users Manual for information on how to change the addresses of the remote controls.
Changing the address of a receiver can be done after removing the screw to the receiver’s PCB cover.
Once the change is complete, put the cover back in place; while holding the wiring with the cable clamp, tighten its screw.
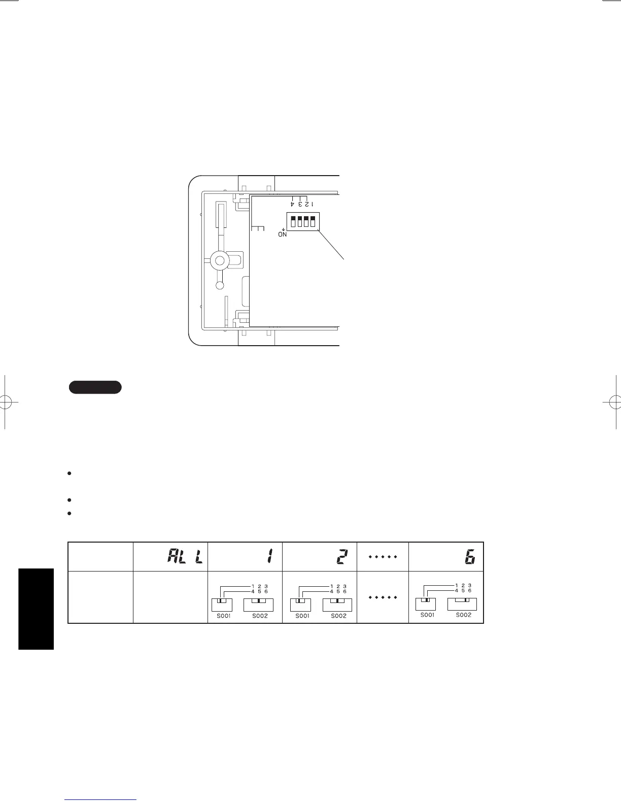
5. Setting Address Switches
This is hard on the device, so only use this for the test run.
After turning on the power, the unit will not receive any commands from the remote control for about 1 minute.
This is not an error. (In fact it does receive signals, but they are cancelled.)
(1)
(2)
NOTE
Fig. 8-14
S003
Bit 1: OFF
ON
Address Display
on the Remote
Control
Position of the
Receiver’s
Address Switch
It doesn’t matter
where the receiver’s
address switch is.
Sec8.indd20 2012/02/2816:14:02
SM830211-07PAC-i.indb20SM830211-07PAC-i.indb20 2013/09/1723:03:362013/09/1723:03:36

Table of Contents

Other manuals for Panasonic S-36PY1E5

Related product manuals