EasyManua.ls Logo

Panasonic SB-PC72 - Page 85

Panasonic SB-PC72
148 pages
Print Icon
To Next Page IconTo Next Page
To Next Page IconTo Next Page
To Previous Page IconTo Previous Page
To Previous Page IconTo Previous Page
Loading...
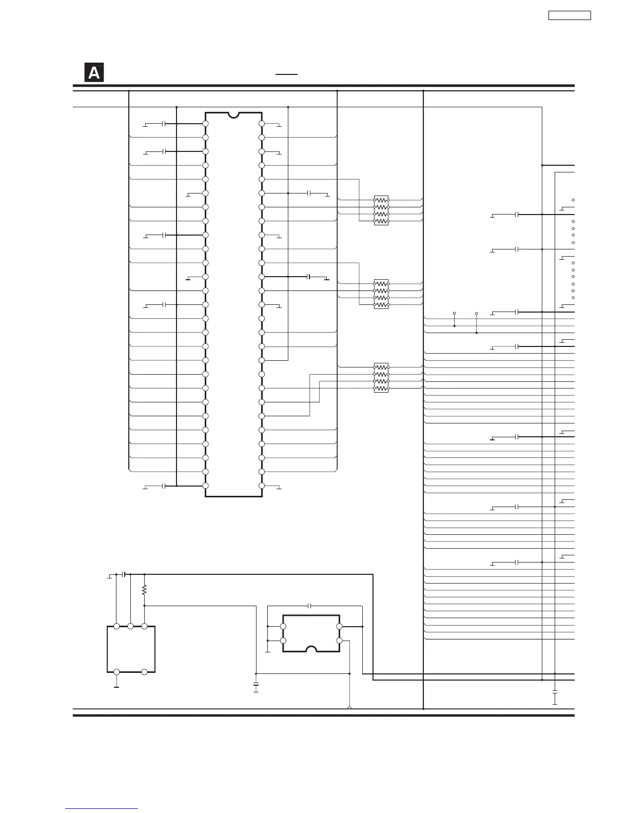
SCHEMATIC DIAGRAM - 6
DVD MODULE CIRCUIT
: +B SIGNAL LINE
C8602
0.015
VDD
DQ0
VDDQ
DQ1
DQ2
VSSQ
DQ3
DQ4
VDDQ
DQ5
DQ6
VSSQ
DQ7
VDD
LDQM
/WE
/CAS
/RAS
/CS
BA0
BA1
A10/AP
A0
A1
A2
A3
VDD
VSS
DQ15
VSSQ
DQ14
DQ13
VDDQ
DQ12
DQ11
VSSQ
DQ10
DQ9
VDDQ
DQ8
VSS
NC
UDQM
CLK
CKE
NC
A11
A9
A8
A7
A6
A5
A4
VSS
EXADR1
EXADR2
EXADR3
MDQ15
MDQ14
MDQ11
MDQ10
DQM1
CLK
MA7
MA6
MA5
MA4
MDQ0
MDQ1
MDQ2
MDQ3
MDQ4
MDQ5
MDQ6
MDQ7
DQM0
NWE
NCAS
NRAS
NCSM
BA0
BA1
MA10
MA0
MA1
MA2
MA3
C8051
1
C8052
0.1
C8053
0.1
C8054
220P
C8055
1
C8056
2200P
C8057
1
C8007 0.1
C8019 0.1
C8018 0.1
C8008
0.1
IC8051
IC8051
C3ABPG000145
64 SDRAM IC
VSS
VDD
OUT
NC
CD
PNRST
C8606
0.1
R8601
100K
C8601
0.1
IC8606
C0EBE0000455
RESET IC
IC8601
C0EBA0000029
RESET IC
C8020 0.1
C8021 0.1
C8022 0.1
C8006 0.1
EXADR4
EXADR5
EXADR6
EXADR7
EXADR17
EXADR18
EXADR19
EXADR8
EXADR9
EXADR10
EXADR11
EXADR12
EXADR13
EXADR14
EXADR15
EXADR16
EXDT15
EXDT7
EXDT14
EXDT5
EXDT12
EXDT4
EXDT6
EXDT13
EXDT11
EXDT3
EXDT10
EXDT2
EXDT9
EXDT1
EXDT8
EXDT0
NEXOE
NEXCE
EXADR0
CL8058
CL8059
CL8057
CL8060
CL8056
CL8061
CL8055
CL8062
CL8054
CL8063
CL8053
OUT
VDDNIC
GND
NEXWE
CL8651
CL8653
MA10A
MA8
MA9
RX8015
(82 x 4)
MA11
MA10
MDQ7A
MDQ8
MDQ6A
RX8014
(82 x 4)
MDQ9
MDQ7
MDQ6
MDQ3A
MDQ12
MDQ2A
RX8012
(82 x 4)
MDQ13
MDQ3
MDQ2
IC8606
IC8601
4
5
12
3
1
2
3
4
1
2
3
52
53
54
4
51
5
50
6
49
7
48
8
47
9
46
10
45
11
44
12
43
13
42
14
41
15
40
16
39
17
38
18
37
19
36
20
35
21
34
22
33
23
32
24
31
25
30
26
29
27
28
85
SA-VK725DEE

Table of Contents

Related product manuals