EasyManua.ls Logo

Panasonic TH-37PV7P - Removing SC, SS, and Stand Brackets

Panasonic TH-37PV7P
175 pages
Print Icon
To Next Page IconTo Next Page
To Next Page IconTo Next Page
To Previous Page IconTo Previous Page
To Previous Page IconTo Previous Page
Loading...
37 inch
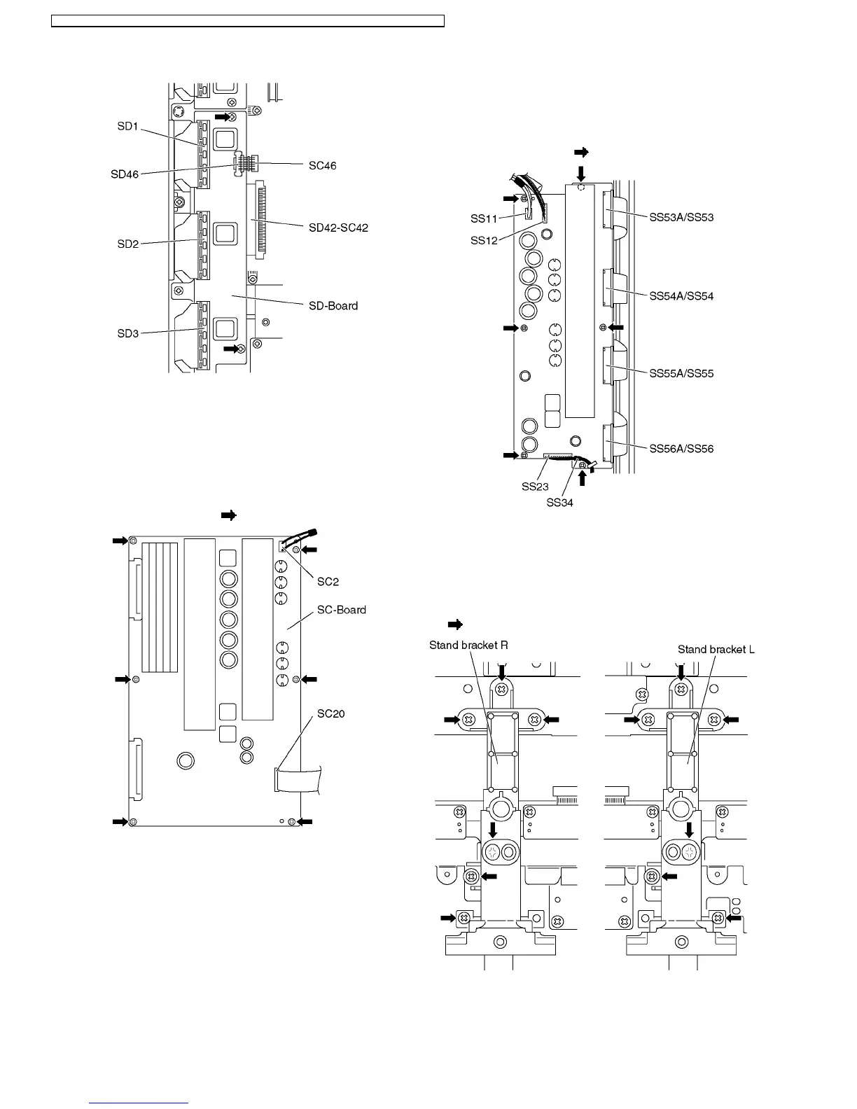
6.9. Remove the SC-Board
1. Remove the SU-Board and SD-Board. (See section 6.7.
and 6.8.)
2. Unlock the cable clampers to free the cable.
3. Disconnect the connector (SC2).
4. Disconnect the flexible cable (SC20).
5. Remove the screws (×6
) and remove the SC-Board.
6.10. Remove the SS-Board
1. Disconnect the connectors (SS11, SS12, SS23 and SS34).
2. Disconnect the flexible cables (SS53A, SS54A, SS55A and
SS56A) (42 inch)/ (SS53, SS54, SS55, and SS56) (37inch)
3. Remove the screws (×6
) and remove the SS-Board.
6.11. Remove the stand brackets
1. Remove the plasma panel section from the servicing stand
and lay on a fiat surface such as a table (covered) with the
plasma panel surface facing downward.
2. Remove the stand brackets (left, right) fastening screws (×6
each) and remove the stand brackets (left, right).
12
TH-37PV7F / TH-37PV7P / TH-37PX7B / TH-37PX7E / TH-42PV7F / TH-42PV7P / TH-42PX7B / TH-42PX7E

Table of Contents