EasyManua.ls Logo

Panasonic TH-37PV7P

Panasonic TH-37PV7P
175 pages
To Next Page IconTo Next Page
To Next Page IconTo Next Page
To Previous Page IconTo Previous Page
To Previous Page IconTo Previous Page
Loading...
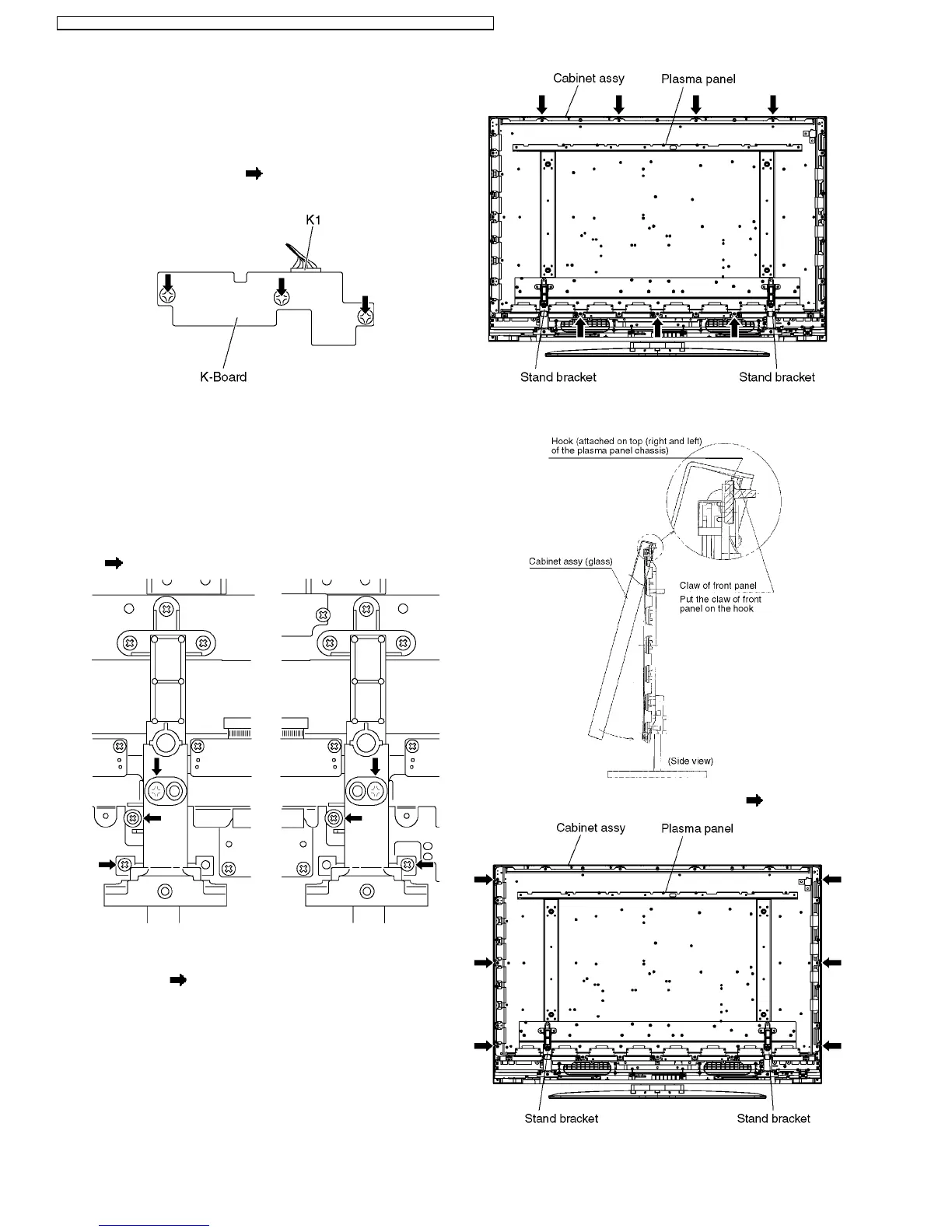
6.16. Remove the K-Board
1. Remove the S-Board. (See section 6.13.)
2. Unlock the cable clampers to free the cable.
3. Disconnect the connectors (DG). (See section 6.4.)
4. Remove the screws (×3
) and remove the K-Board.
5. Disconnect the connectors (K1) and remove the K-Board.
6.17. Remove the Plasma panel
section from the Cabinet assy
(glass)
1. Remove the plasma panel section from the servicing stand
and lay on a fiat surface such as a table (covered) with the
plasma panel surface facing downward.
2. Remove the stand brackets (left, right) fastening screws (×3
each).
3. Replace the servicing stand and stand the set.
4. Remove the cabinet assy and the plasma panel fastening
screws (×7
).
5. For leaving the plasma panel from the cabinet assy, pull the
bottom of the front frame forward, lift, and remove.
6. Remove the spacers and spacer rings (×6 ).
14
TH-37PV7F / TH-37PV7P / TH-37PX7B / TH-37PX7E / TH-42PV7F / TH-42PV7P / TH-42PX7B / TH-42PX7E

Table of Contents

Related product manuals