EasyManua.ls Logo

Panasonic TX-P50C2B - 3 Service Navigation; PCB Layout

Panasonic TX-P50C2B
107 pages
Print Icon
To Next Page IconTo Next Page
To Next Page IconTo Next Page
To Previous Page IconTo Previous Page
To Previous Page IconTo Previous Page
Loading...
6
3 Service Navigation
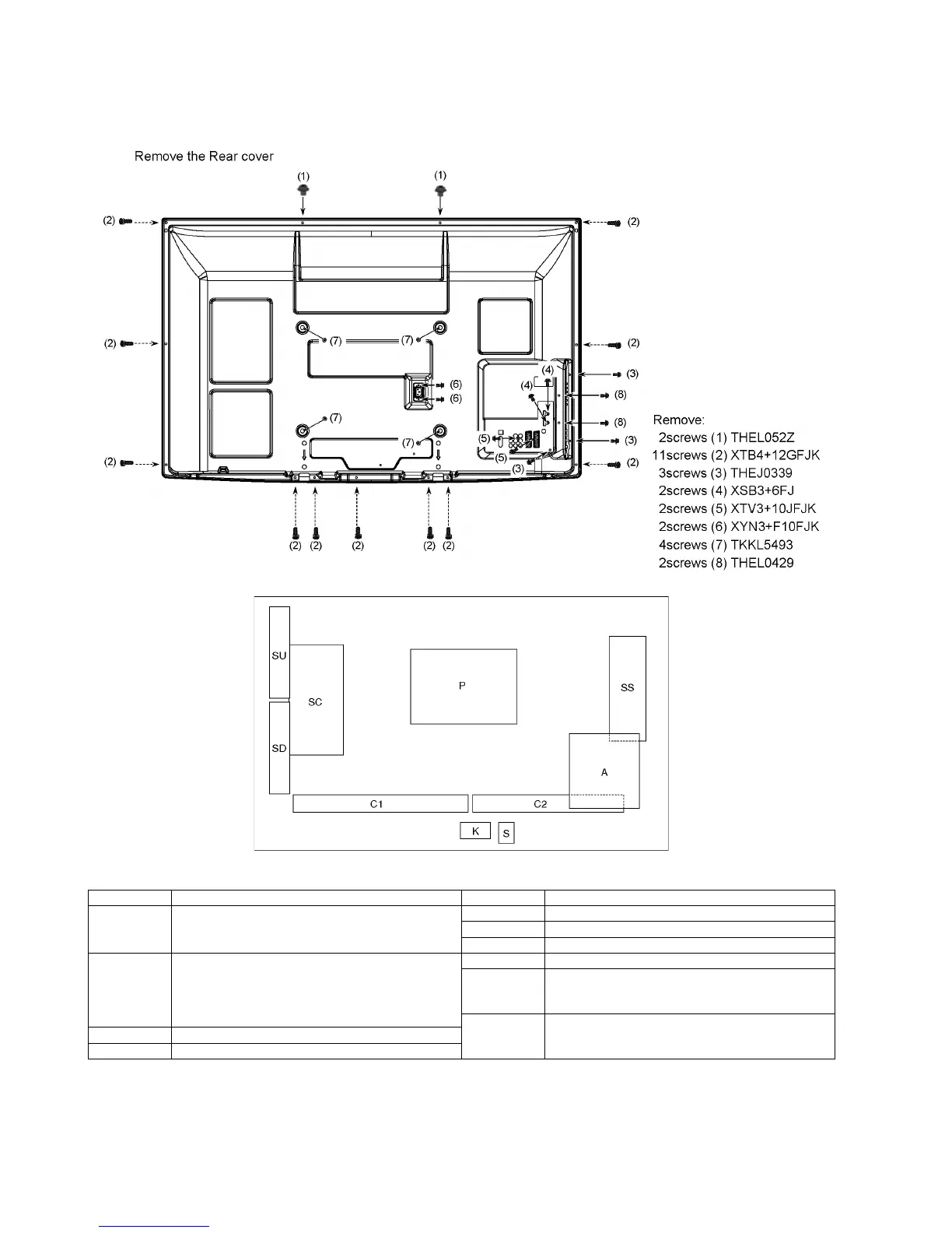
3.1. PCB Layout
Board Name Function Board Name Function
P Power Supply
Non serviceable.
P-Board should be exchanged for service.
C1 Data Driver (Lower Right)
C2 Data Driver (Lower Left)
SC Scan Drive
A DC-DC Converter, Tuner
Speaker out, AV Terminal, HDMI in, SD Card
Digital Signal Processor, PEAKS-sLD
Format Converter, Plasma AI, Sub-Field Processor
Key Switch
SS Sustain Drive
SU Scan out (Upper)
Non serviceable.
SU-Board should be exchanged for service.
SD Scan out (Lower)
Non serviceable.
SD-Board should be exchanged for service.
K Remote receiver, Power LED
S Power Switch

Table of Contents

Related product manuals