EasyManua.ls Logo

Panasonic U-100PEY1E5 - Front View

Panasonic U-100PEY1E5
739 pages
To Next Page IconTo Next Page
To Next Page IconTo Next Page
To Previous Page IconTo Previous Page
To Previous Page IconTo Previous Page
Loading...
1-248
1
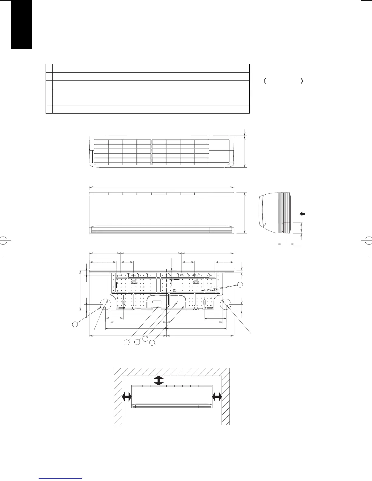
1-2. Dimensional Data
(A) Indoor Units: S-36PK1E5, S-45PK1E5, S-50PK1E5, S-60PK1E5
S-71PK1E5
FILTER SIZE
(418.5 X 342 X 2) X 2 pcs.
1
2
3
Refrigerant tubing (liquid tube) S36 - S50:
ø6.35
(flared) S60 - S71:
ø9.52
(flared)
S36 - S50:
ø12.7
(flared) S60 - S71:
ø15.88
(flared)
Drain hose VP13 (outer dia. ø18)
4
Rear panel (PL BACK)
Refrigerant tubing (gas tube)
5
Rear panel fixing holes (ø5 holes or 5X13 elongated holes)
6
Piping & coiring holes (ø80)
unit: mm
1065
300 230 3
708
60
95 95
231
mc 5mc 5
7.5 cm
450 384
200 140
67
300
415 415
448 440
497568
(ø80)
(ø80)
158
132
48
48
37
18
4
6
3
2
1
Z
Z view
Nessesary minimum space for a installation
Front view
5
SM830211-07PAC-i.indb248SM830211-07PAC-i.indb248 2013/09/1722:47:452013/09/1722:47:45

Table of Contents

Other manuals for Panasonic U-100PEY1E5

Related product manuals