EasyManua.ls Logo

Panasonic U-100PEY1E5 - Symptom: Thermostat in off Continues or Cycles off & on too Frequently

Panasonic U-100PEY1E5
739 pages
To Next Page IconTo Next Page
To Next Page IconTo Next Page
To Previous Page IconTo Previous Page
To Previous Page IconTo Previous Page
Loading...
5-69
5
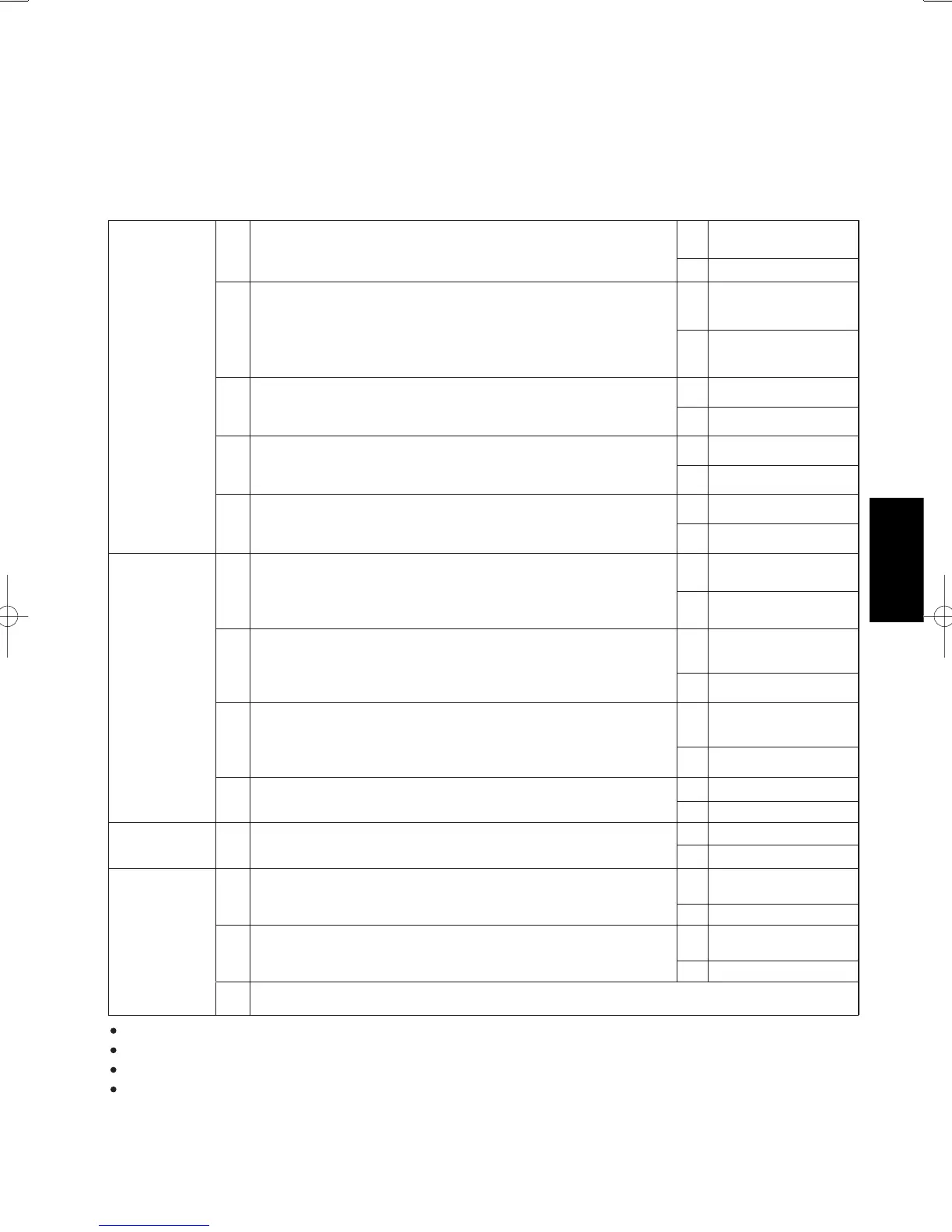
5-5. Symptom: Thermostat in OFF continues or
cycles OFF & ON too frequently
1-1
Adjust setting
temperature
1-2
Yes
No
Connect correctly
1-3
Yes
No
1
Check if the sensors are connected correctly.
Are all connection made properly?
Room temp. (TA) in yellow, heat exchanger (E1) in red,
heat exchanger (E2) in black, heat exchanger (E3) in brown,
air outlet (BL) in green
1-2
Indoor control
PC board
How to detect abnormality
Error Diagnosis
Abnormality does not occur. Protective function can be checked when the outdoor maintenance remote controller is
connected.
1.
2.
Setting temperature reaches the level set ON thermostat.
Setting temperature is too low in heating mode and too high
in cooling and dry mode.
2
DISP (display mode) is applied.
With a thermostat OFF in heating mode, wind speed
(item code 05) is out of range 0 - 6. (Use Simple Setting
Function on standard timer remote controller.)
1-3
1-4
1-5 DEMAND is applied.
Outdoor
control
PC board
3 Control
equipment
4 System
Turn OFF(OPEN)
1-4
Yes
No
Choose one of 0 to 6
1-5
Yes
No
Turn OFF(OPEN)
2-1
Yes
No
2-1
Outdoor unit and protective function of a system are operating.
(Connect outdoor maintenance remote controller to RC socket
on outdoor unit main control PC board and check alarm
messages.)
See operational status
2-2
Yes
No
2-2
Discharge temperature is over 80°C in stop mode and does not
decrease. (Connect outdoor maintenance remote controller to
RC socket on outdoor unit main control PC board and check
alarm messages.)
Replace discharge
temperature sensor
2-3
Yes
No
2-3
Demand value always stays low. (The value is lower than 70.
Excluding -1 (unlimited))(Connect outdoor maintenance remote
controller to RC socket on outdoor unit main control PC board
and check alarm messages.)
Increase values
(over 70
2-4
Yes
No
2-4 DEMAND is applied.
Turn OFF(OPEN)
3-1
Yes
No
3-1
Demand setting is made by control units (P-AIMS, Seri-Para I/O
unit for outdoor unit, Seri-Para I/O each indoor unit.)
Turn OFF
4-1
Yes
No
4-1
When operating in cooling (including auto cooling & heating)
and dry mode, lowest temp. of indoor E1, E2 and E3 sensor is
less than 2°C (under anti-freeze control).
Wait until more than
2°C reaches
4-2
Yes
No
4-2 During defrosting operation
Wait for a few minutes
to 10 minutes or so
4-3
Yes
No
4-3 Outdoor unit PC board failure → Replacement
According to a type of model, the indoor sensors will not be supplied in some cases.
According to a type of model, the outdoor DEMAND will not be supplied in some cases.
When LINE Checker is used, the temperature sensors can be observed (display, record) simultaneously.
According to some areas, some of the models are unreleased.
SM830211-07PAC-i.indb69SM830211-07PAC-i.indb69 2013/09/0710:42:502013/09/0710:42:50

Table of Contents

Other manuals for Panasonic U-100PEY1E5

Related product manuals