EasyManua.ls Logo

Panasonic U-100PEY1E5 - Page 551

Panasonic U-100PEY1E5
739 pages
To Next Page IconTo Next Page
To Next Page IconTo Next Page
To Previous Page IconTo Previous Page
To Previous Page IconTo Previous Page
Loading...
3-11
3
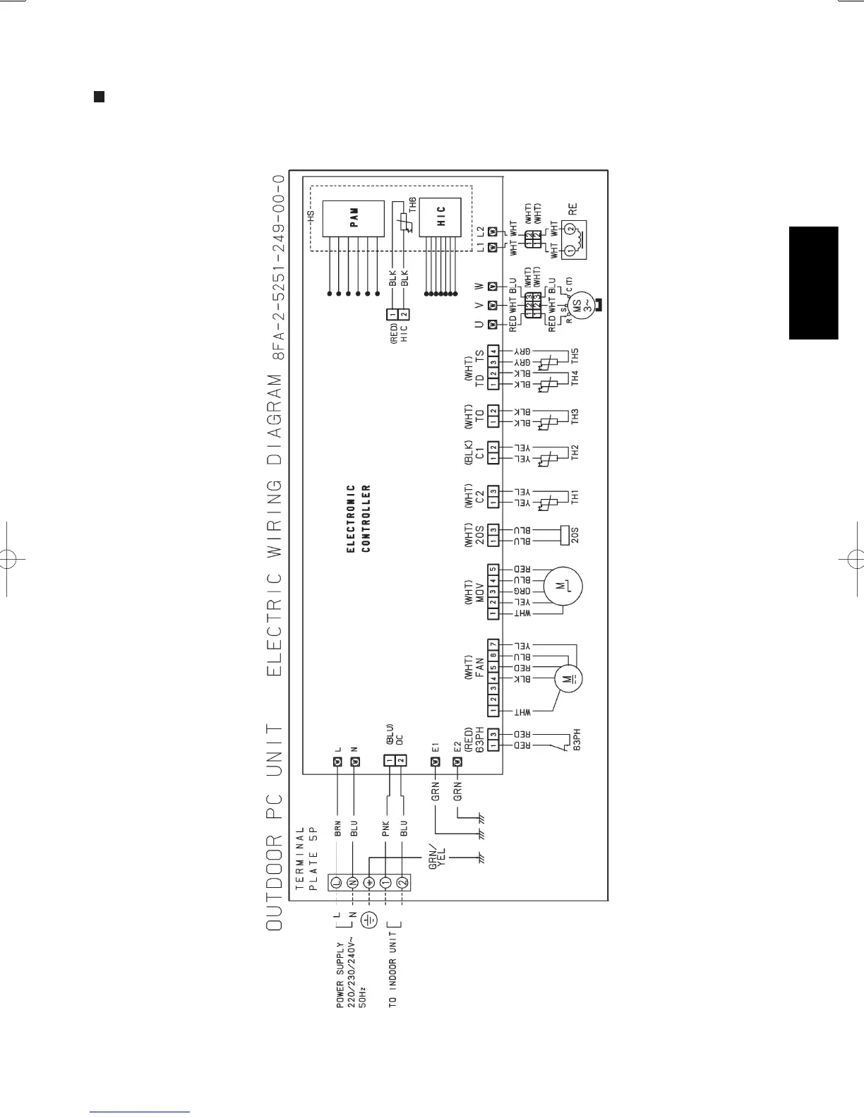
3-2. Outdoor Units
Single-phase U-50PE1E5
SM830211-07PAC-i.indb11SM830211-07PAC-i.indb11 2013/07/1714:07:072013/07/1714:07:07

Table of Contents

Other manuals for Panasonic U-100PEY1E5

Related product manuals