EasyManua.ls Logo

Panasonic U-8MF2E8 - Page 44

Panasonic U-8MF2E8
153 pages
Print Icon
To Next Page IconTo Next Page
To Next Page IconTo Next Page
To Previous Page IconTo Previous Page
To Previous Page IconTo Previous Page
Loading...
3WAY SYSTEM
Control Functions
1 - 36
1
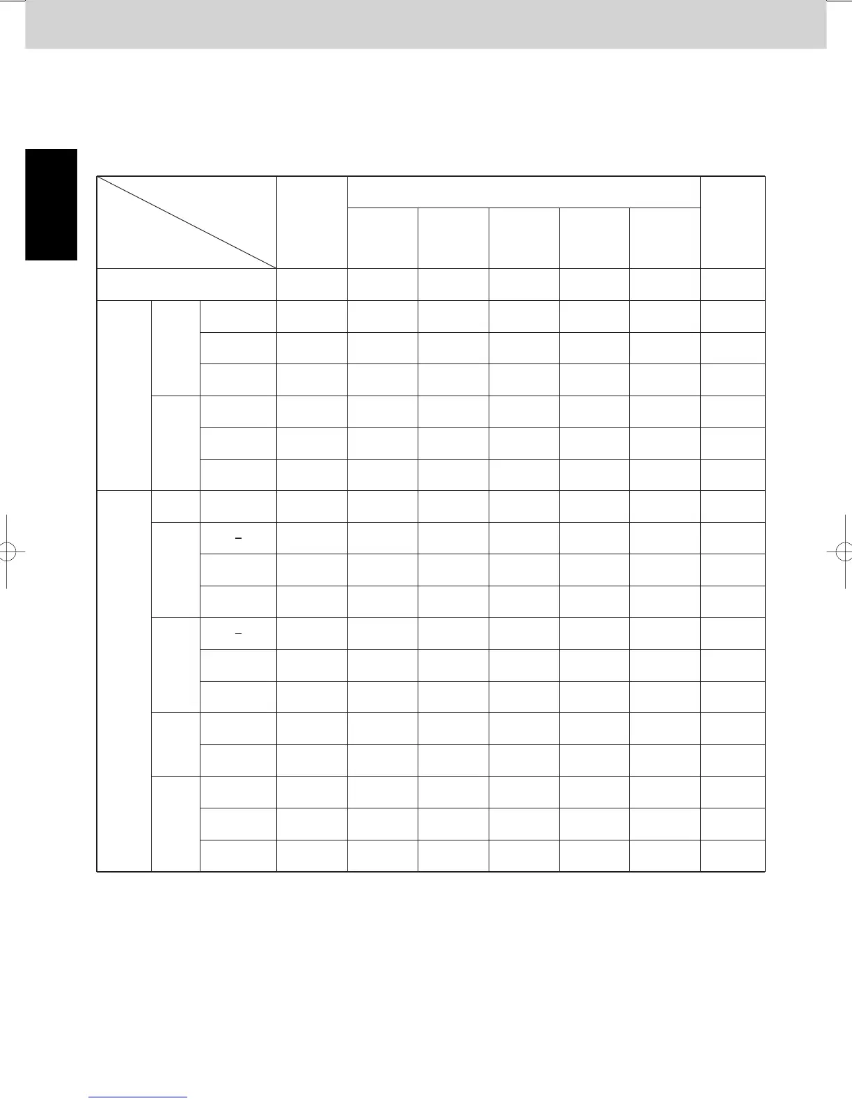
9. Defrost Control
E
C→E
E→C
S
C
: Evaporator operation
*1 Function when a common use solenoid valve kit is used and there are more than one (1) indoor unit in the
cooling mode within the same solenoid valve kit.
*2 Function when a common use solenoid valve kit is used and there are more than one (1) indoor unit in the
heating mode within the same solenoid valve kit.
*3 Only for High Static Pressure Ducted Type Indoor Unit (Type E1)
: Switching from condenser operation to evaporator operation
: Switching from evaporator operation to condenser operation
: Stop or shut off the refrigerant
: Condenser operation
Normal
operation
Normal
operation
Outdoor unit cycle defrost processing
E E→C C C→E E E E
Outdoor
unit
delay-start
control
Defrost
group
1st
Defrost
group
2nd
㻿㼣㼕㼠㼏㼔 㻿㼣㼕㼠㼏㼔
Control time
-
1 min Max 7 min 1 min Max 8 min 1 min -
Defrost
occurs
Outdoor
unit(s)
Indoor
units
Defrost
occurs
first
second
Mode
Stop
Heat
exchanger
Compressor
Fan
Heat
exchanger
ON or SCompressor
Fan
Thermostat
*1(Cooling)
*2(Heating)
Fan
*1(Cooling)
*2(Heating)
Cooling
Heating
ON
OFF
ON
OFF
E or S
S
ON
ON
ON or S
S
S
S
S
S
E
S
C
C
E
S
ON
OFF
OFF
ON
S
C
S
S
C
E
S
C
C
E
S
ON
OFF
OFF
ON
S
C
S
S
C
E
S
C
C
E→C
S
OFF
OFF
OFF
OFF
S
C
S
S
C
E
S
C
C
C
S
OFF
ON
ON
OFF
S
C
S
S
C
E
S
C
C
C→E
S
OFF
OFF
OFF
OFF
S
C
S
S
C
E
S
C
C
E or S
S
ON
ON
ON or S
ON or S
S
C
S
S
C
E
S
C
C
OFF *3 S S S S S S S
SM830226-003WAYECO-iSYSTEM.in3636SM830226-003WAYECO-iSYSTEM.in3636 2013/02/1311:52:282013/02/1311:52:28

Table of Contents

Related product manuals