EasyManua.ls Logo

Panasonic WH-SDC03E3E5 - 7 Block Diagram

Panasonic WH-SDC03E3E5
127 pages
Print Icon
To Next Page IconTo Next Page
To Next Page IconTo Next Page
To Previous Page IconTo Previous Page
To Previous Page IconTo Previous Page
Loading...
22
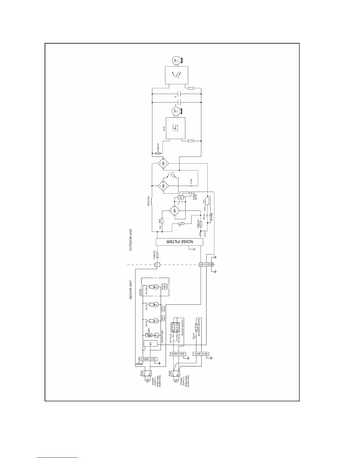
7. Block Diagram

Table of Contents

Related product manuals