EasyManua.ls Logo

Parker Hyperchill PCW420 - (Control Pcom); Control de Precisión (Control Pcom); Control de Precisión + Baja Temperatura Ambiente (-10 C°) (Control Pcom); Reactivación Automática

Parker Hyperchill PCW420
76 pages
Print Icon
To Next Page IconTo Next Page
To Next Page IconTo Next Page
To Previous Page IconTo Previous Page
To Previous Page IconTo Previous Page
Loading...
Español
8/10
Hyperchiller 150-230
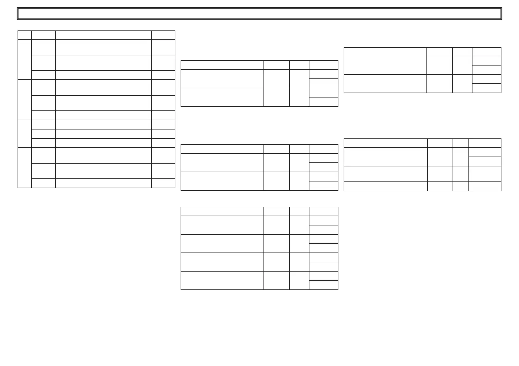
4.9.2 Alarmas desde las entradas analógicas
AI CÓDIGO Descripción Restabl
b1
HA1
Alarma alta temperatura salida de
agua depósito
Avviso
LA1
Alarma baja temperatura salida de
agua depósito
A
St1
Sonda abierta o en cortocircuito M
b2
HA2
Alarma alta temperatura salida de
agua evaporador 1
Avviso
LA2
Alarma baja temperatura salida de
agua evaporador 1
A
St2
Sonda abierta o en cortocircuito M
b5
HA5
Aviso alta temperatura ambiente Avviso
LA5
Aviso baja temperatura ambiente Avviso
St5
Sonda abierta o en cortocircuito M
b7
HA7
Alarma alta temperatura salida de
agua evaporador 2
Avviso
LA7
Alarma baja temperatura salida de
agua evaporador 2
Avviso
St7
Sonda abierta o en cortocircuito M
4.10 Reactivación automática
Si hay uncorte de energía, cuando vuelve la corriente el en-
friador conserva el estado de encendido o apagado que tenía
antes del corte.
5 Opción
5.1 Control de precisión
(Control pCOM)
5.1.1 Parámetro directo (DIRECT)
PARÁMETRO CÓDIGO TIPO PREDET.
Ajuste control termostático
SEt D
20.0
68.0
Diferencial control termostático
dIF D
1.0
1.8
5.2 Control de precisión + Baja temperatura ambien-
te (-10°C)
(Control pCOM)
5.2.1 Parámetro directo (DIRECT)
PARÁMETRO CÓDIGO TIPO PREDET.
Ajuste control termostático
SEt D
20.0
68.0
Diferencial control termostático
dIF D
1.0
1.8
5.2.2 Confi guración del ventilador, parámetro Fábrica
(FACTORY)
PARÁMETRO CÓDIGO TIPO PREDET.
Con guración del ventilador 1°
SEF1 F
19.0
276
Con guración del ventilador 2°
SEF2 F
20.0
290
Con guración del ventilador 3°
SEF3 F
21.0
304
Diferencial
dIF F
3.0
43
P1 : OFF 218 PSIg - ON 276 PSIg
P2 : OFF 232 PSIg - ON 290 PSIg
P3 : OFF 247 PSIg - ON 304 PSIg
5.3 Baja temperatura ambiente L2 (-4/-22 °F)
(Control pCOM)
5.3.1 Parámetro directo (DIRECT)
PARÁMETRO CÓDIGO TIPO PREDET.
Ajuste control termostático
SEt D
7.0
45.0
Diferencial control termostático
dIF D
4.0
7.2
confi guración del ventilador desde el control:
Pression 203 PSIg - Funcionamiento del ventilador 0%
Pression 290 PSIg - Funcionamiento del ventilador 100%
5.3.2 Parámetros de la sonda b5, Parámetros Servicio
(USER)
Temperatura ambiente
PARÁMETRO CÓDIGO TIPO PREDET.
Alarma de alta temperatura
HA5 U
60.0
140.0
Alarma de baja temperatura -20
Alarma de baja temperatura -30
LA5 U
-20.0 / -4.0
-30.0/ -22.0
Calibración de la sonda
CA5 U 0.0

Table of Contents