EasyManua.ls Logo

Parker Hyperchill PCW420 - Page 44

Parker Hyperchill PCW420
76 pages
Print Icon
To Next Page IconTo Next Page
To Next Page IconTo Next Page
To Previous Page IconTo Previous Page
To Previous Page IconTo Previous Page
Loading...
10
,
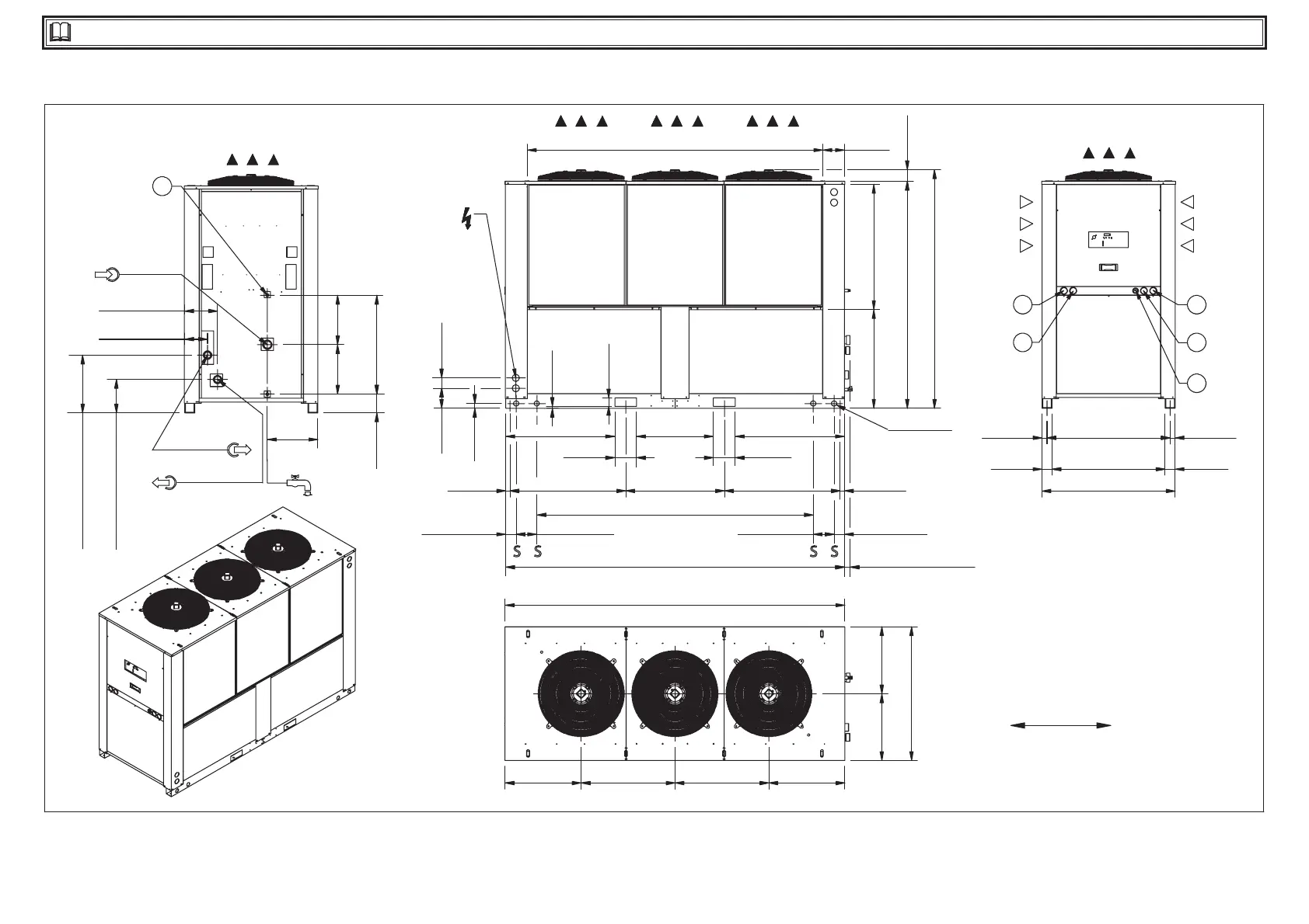
7.5 Dimensions PCW650
PCW420-650
485
19.09[]
476,5
18.76[]
476,5
18.76[]
179,5
7.07[]
2844 111.97[]
210
8.27[]
1209 48[]
100
3.94[]
192
7.56[]
45
1.77[]
1050 41.34[]
210
8.27[]
740 29.13[]
210
8.27[]
1050 41.34[]
903,5
35.57[]
*
950 37.40[]
2660 104.72[]
200 7.87[]
200 7.87[]
100 3.94[]
100 3.94[]
3260 128.35[]
*
No.8 HOLES Ø18
1185 46.65[]
*
47,5
1.87[]
*
47,5
1.87[]
95
3.74[]
95
3.74[]
1090 42.91[]
*
1115 43.90[]
*
1115
43.90
[]
948 37.32[]
555
±
5 21.85
±
.19[]
3270 128.74[]
645
25.39[]
645
25.39[]
731,5
28.80[]
731,5
28.80[]
903,5
35.57[]
320
±
5 12.62
±
.19[]
953 37.52[]
1290
50.79[]
*
40
1.57[]
*
40
1.57[]
1280
50.39[]
55 ± 52.17± .19[]
2187 86.09[] 110
4.33[]
2297 90.42[]
ø51 2.01[]
222 ± 5
8.74 ± .19[]
318 ± 5
12.51 ± .19[]
80
3.15[]
18
.71[]
CIRCUIT 1CIRCUIT 2
SS
S
S
17
16
15
17
16
13
NP (no pump)
P(pump)
[ inches ]
mm
*
Base xing holes position

Table of Contents