EasyManua.ls Logo

Parker Hyperchill PCW420 - Page 56

Parker Hyperchill PCW420
76 pages
Print Icon
To Next Page IconTo Next Page
To Next Page IconTo Next Page
To Previous Page IconTo Previous Page
To Previous Page IconTo Previous Page
Loading...
22
,
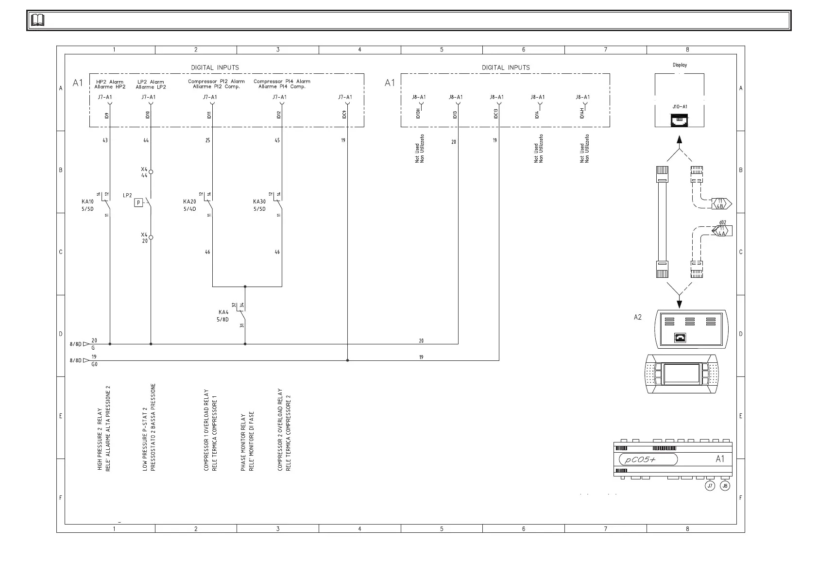
7.6 Wiring diagram (standard)
PCW420-650
(Sheet 9 of 12)

Table of Contents