EasyManua.ls Logo

Parker Starlette Plus - Page 81

Parker Starlette Plus
106 pages
Go to English
To Next Page IconTo Next Page
To Next Page IconTo Next Page
To Previous Page IconTo Previous Page
To Previous Page IconTo Previous Page
Loading...
,
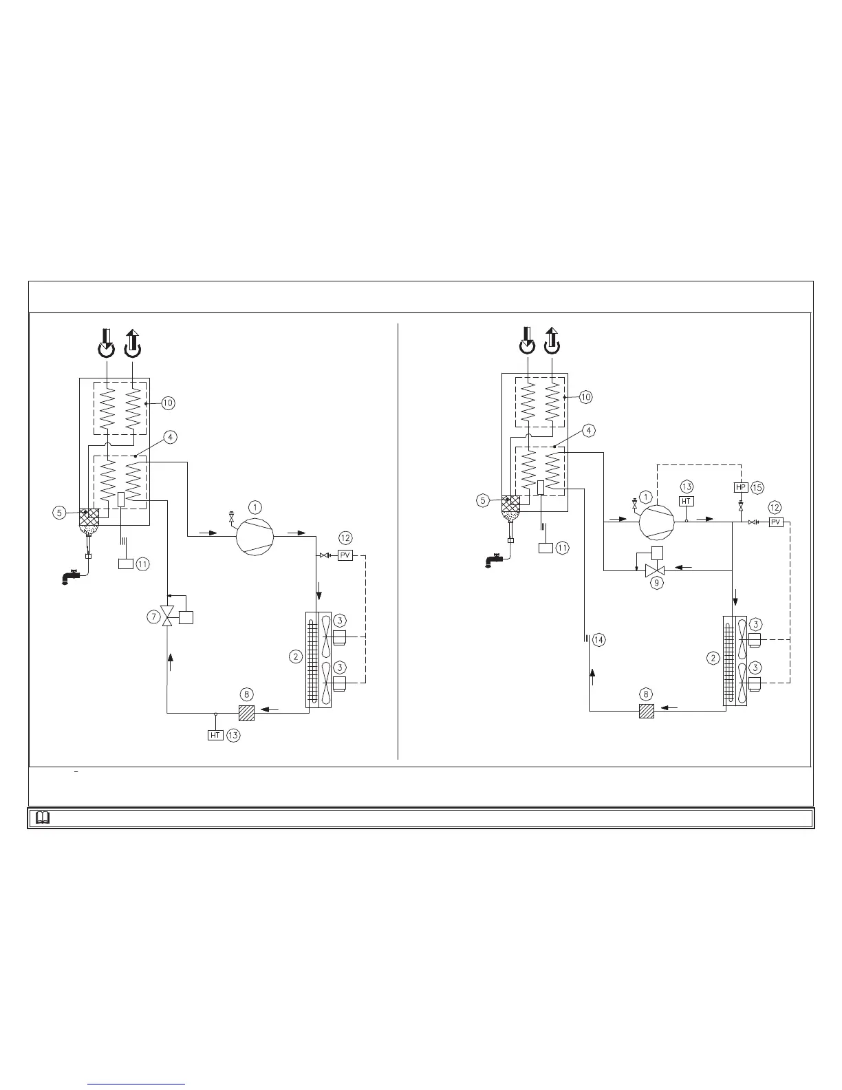
8.7 REFRIGERANT CIRCUIT
11
SPL040-060
SPL 040 SPL 050 - 060

Related product manuals