EasyManua.ls Logo

Parker Starlette Plus - Wiring Diagram

Parker Starlette Plus
106 pages
Go to English
To Next Page IconTo Next Page
To Next Page IconTo Next Page
To Previous Page IconTo Previous Page
To Previous Page IconTo Previous Page
Loading...
,
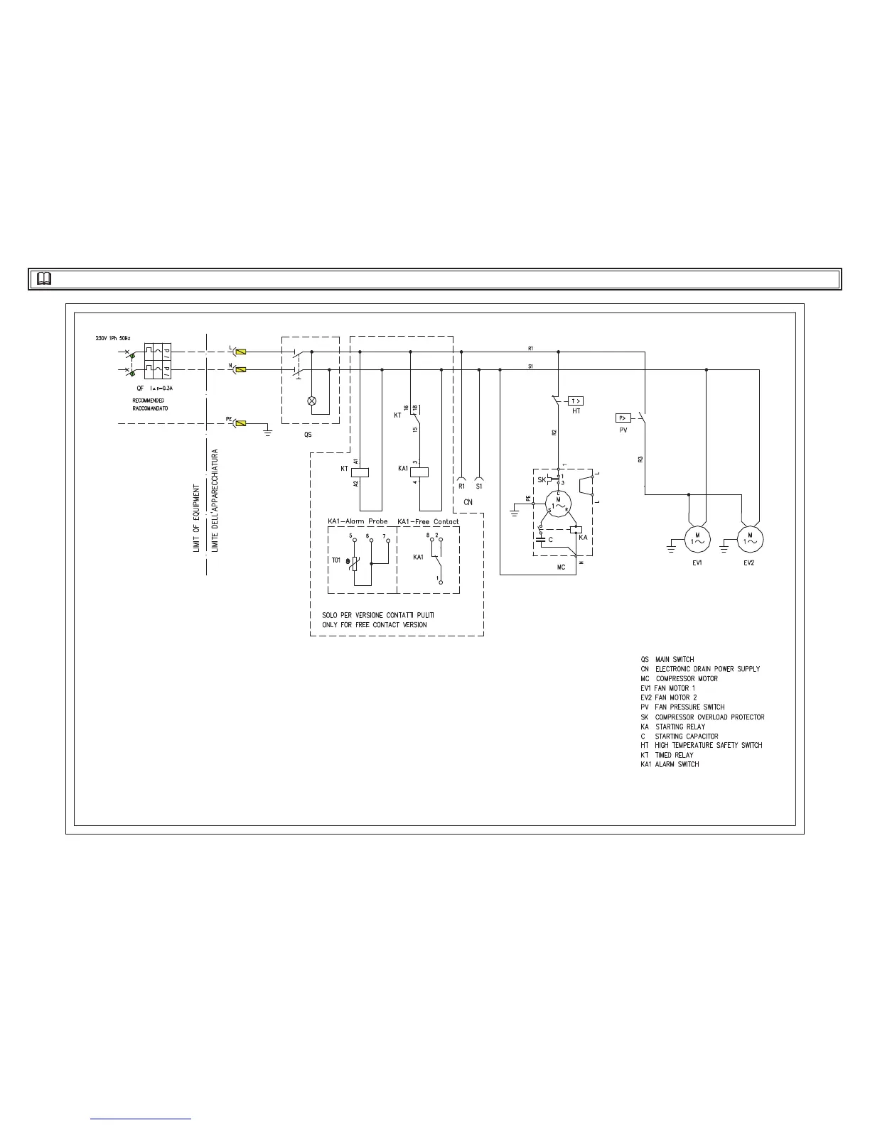
8.8 WIRING DIAGRAM
12
SPL040-060
SPL 040

Related product manuals