EasyManua.ls Logo

PEERLESS PureFire PF-80 - Page 14

PEERLESS PureFire PF-80
92 pages
Print Icon
To Next Page IconTo Next Page
To Next Page IconTo Next Page
To Previous Page IconTo Previous Page
To Previous Page IconTo Previous Page
Loading...
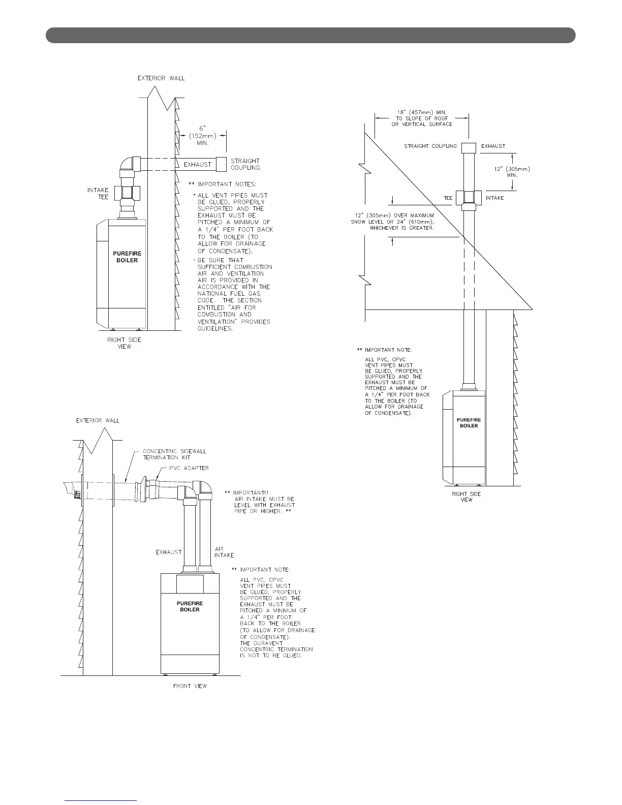
8. Vertical Venting Configuration:
a. Figure 3.8 shows the approved venting
configuration for vertical venting using the
standard fittings supplied.
b. Locate the air intake pipe inlet 12" above the
expected snow accumulation on the roof surface
or 24" above the roof surface, whichever is greater.
c. Locate the end of the exhaust vent pipe a minimum
of 12" above the inlet to the air intake pipe.
d. Figure 3.9 shows an approved vertical vent
configuration using the optional concentric vent
termination kit.
e. Figure 3.10 shows an option for routing the
exhaust and air inlet piping through an unused
chimney.
f. Figure 3.11 shows this option using inlet air from
a sidewall position.
g. Figure 3.12 shows an option for routing the
exhaust through an unused chimney with the
combustion air supplied from inside the building.
Be sure to note the requirements for combustion
air as listed under Section 1.D. "Combustion and
Ventilation Air". These requirements are in
accordance with the National Fuel Gas Code.
Figure 3.7: Optional Concentric Vent Kit
Installation
12
Figure 3.8: Standard Vertical Vent Installation
VENTING & AIR INLET PIPING
Figure 3.6: Sidewall Exhaust with Indoor Air

Table of Contents

Related product manuals