EasyManua.ls Logo

Perfecta 76 TV - Main Clamping

Perfecta 76 TV
32 pages
Print Icon
To Next Page IconTo Next Page
To Next Page IconTo Next Page
To Previous Page IconTo Previous Page
To Previous Page IconTo Previous Page
Loading...
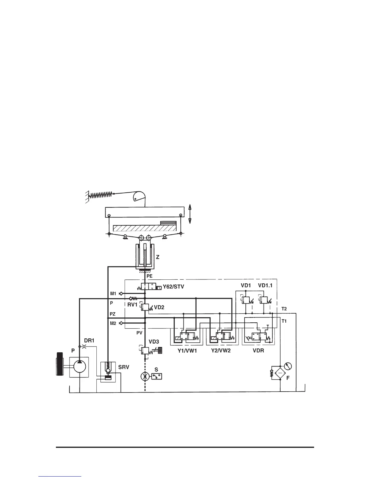
1/01 E Service Instructions 26
Main Clamping
(Fig. 32)
Due to the overflowing of VD2,
the main pressure preset by
clamping pressure valve builds
up in the fast-speed and main
cylinder chambers.
Fig. 32

Related product manuals