EasyManua.ls Logo

Philips 29PT5445/85 - Page 22

Philips 29PT5445/85
56 pages
Print Icon
To Next Page IconTo Next Page
To Next Page IconTo Next Page
To Previous Page IconTo Previous Page
To Previous Page IconTo Previous Page
Loading...
EN 22L03.1U AA 7.
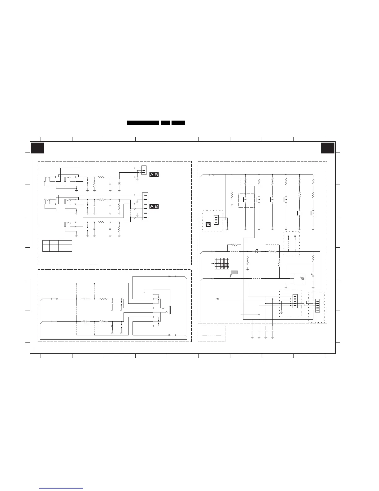
Circuit Diagrams and PWB Layouts
Mono Carrier: Font I/O + Control + HP
F
0218-A C1
0218-B B1
0218-C B1
0232 E4
0239 B6
0259 E9
0277-A B1
0277-B B1
1181 A2
1182 B2
1183 C2
1184 A4
1185 B4
1600 B9
1601 B9
1602 B8
1603 B8
1604 B8
123456789
123456789
A
B
C
D
E
F
A
B
C
D
E
1606 B7
1681 E9
1981 E3
1982 F3
2181 A3
2182 B3
2183 C3
2185 B2
2186 C2
2691 D9
2693 F7
2694 F7
2695 F8
2696 F8
2981 E2
2982 E3
2983 F2
2984 F3
3181 A2
3182 A2
3183 B2
3184 B3
3185 C2
3186 C3
3681 A9
3682 B9
3683 A7
3684 A7
3685 A8
3686 A8
3687 A9
3688 B9
3689 B7
3691 D8
3692 D7
3693 D9
3694 D8
3695 C7
3981 E2
3982 F2
RES
4692
4692 D7
4694 F6
4695 C8
4698 C8
4699 C9
4981 E2
1182
4982 E2
4983 F2
4984 F2
6181 A3
6691 D7
6692 D9
9181 B3
9683 A7
9694 D7
9982 E2
470p
2982
3682
2K2
3687
1183
1
2
3
1
1681
IR
IR
+3V3B
KEYBOARD
150R
3183
GND
2
OUT
1
VS
3
3688
200R
F691
0259
2981
1185
1
2
3
4
5
6
8
9
2
3
4
0232
1
LTL-10224WHCR
6691
RES
V
*
FAMILY BOARD 11 NC : 3139_123_5595
A4
channel-
A6
A6
A6
ONLY
FRONT CONTROL
OF
A6
MONO SET
RES
0218
YES
USA
*
L
*
RES
RES
FOR MTV
volume-
TS
FOR ITV ONLY
OF
A4
0R
RES
RES
A4
R
channel+
*
HEADPHONE
POWER
INTERF.
RES
FRONT
NO
STEREO
PANEL
0277
RES
RES
1010 OF
For Engg Purpose Only
FRONT IO + FRONT CONTROL + HEADPHONE
A7 A7
G_13933_007.eps
010506
3139 123 5596.5
RES
FOR ITV ONLY
TO
MONOITEM
MAIN CHASSIS 11 NC : 3139_123_5596
RES
*
TO 1124
SOCKET
YES
NO
RES
RES
DVD Eject
*
TO 1121
FRONT CINCH
volume+
TO
HEADPHONE
4984
2183
330p
2696
5
6
7
8
9
2695
3689
6181
BZX79-C6V8
4982
100u
2983
100u
1
2
3
4
5
2
3
4
5
3692
4699
3K3
3684
4695
9982
1602
1603
1600
200R
3685
3694
1K0
3681
4981
4K7
2181
22p
3981
120R
3184
47K
3695
9181
150R
3185
3693
220R
2182
330p
430R
3686
2186
1601
120R
3683
0277-B
0277-A
1
2
3
47K
3186
4698
0218-C
470p
2984
100R
3182
1184
4694
2
3
6692
TSOP1836-SI3V
0239
1
330R
3691
2693
9683
2185
1982
0218-A
7
0218-B
4
5
6
1604
3982
120R
1606
1981
75R
3181
2694
100u
2691
1181
9694
4983
+5VS
AmpOutL+
AmpOutR+
LED
LED_OUT
IR_OUT
AmpOutL_Pos
AmpOutR_Pos
+3V3A
F691
1V / div AC
2ms / div