EasyManua.ls Logo

Philips 43PUT6101/12 - Page 115

Philips 43PUT6101/12
116 pages
Print Icon
To Next Page IconTo Next Page
To Next Page IconTo Next Page
To Previous Page IconTo Previous Page
To Previous Page IconTo Previous Page
Loading...
Styling Sheets
EN 115TPL16.1E LA 11.
2016-Sep-23
back to
div.table
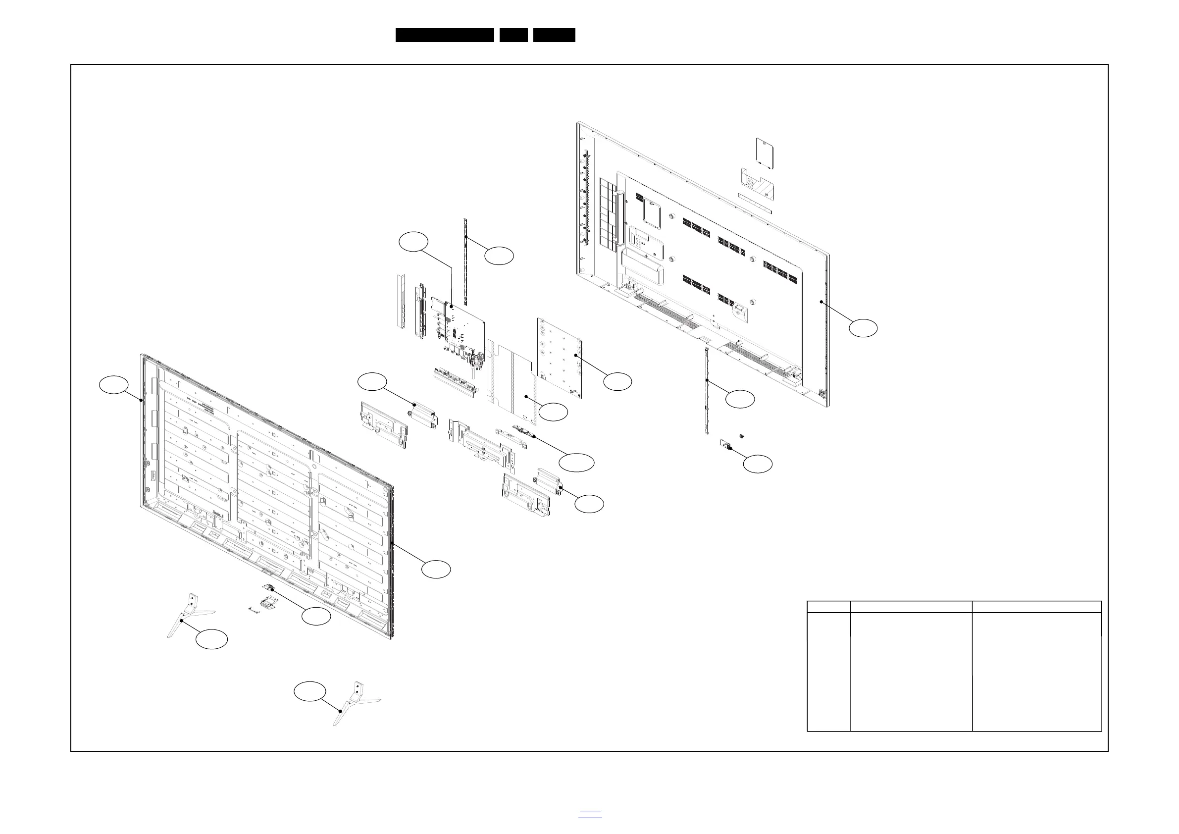
11.5 6201 series 55"
20112_801.eps
6201 series 55"
FOR ELECTRICAL PARTS/ASSEMBLIES SEE WIRING DIAGRAM CHAPTER 9
0030 Bezel
0040 Rear cover
0050L Stand Assy_L
0050R Stand Assy_R
0095 V0 SHEET
1050 Display panel
1053 Panel SSB
1054 Power Supply Unit
1056 IR/LED panel
1057 Keyboard control panel
1061 LED Modules
1176 Remote control Not displayed
1184 Speakers
WiFi01 WiFi_USB
Pos No. Description Remarks
0040
0030
1184
1050
1056
1184
1057
1054
0095
WIFI01
1053
0050R
0050L
1061
1061

Other manuals for Philips 43PUT6101/12

Related product manuals