EasyManua.ls Logo

Philips AUT3015 - Installation Guide

Philips AUT3015
88 pages
Print Icon
To Next Page IconTo Next Page
To Next Page IconTo Next Page
To Previous Page IconTo Previous Page
To Previous Page IconTo Previous Page
Loading...
3
IV. Installation
Note:
- Before installation, it is important to check the condition of the system to
make sure it has not been damaged during transport.
- Unpack the system and its accessories. Remove the protective packaging material.
Recyclable materials have been used for the packaging and should be disposed
of in the appropriate recycling bins or at the specific local recycling center.
Warning: Keep plastic bags out of the reach of children, as they may be dangerous.
- Check if anything is missing according to the packing list and the overview.
- Given that the system will improve the quality of your drinking water, all tools
to be used in the installation process should be clean, rust and grease-free.
- The installation process should be carried out under appropriate hygienic
conditions, taking all necessary precautions concerning materials and components
that will come into contact with water to be treated or consumed.
- Avoid external contamination of the system through improper handling, using
gloves, sanitizing gel, and washing hands as often as is necessary during the
installation process, first use, and system maintenance.
- The system and installation shall comply with applicable local regulations.
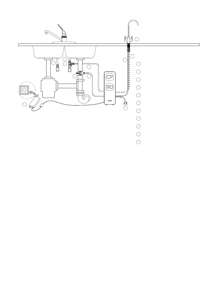
Hot
1
Cold
2
Three-way ball valve
3
Drain outlet pipe
Water inlet pipe
Filtered water outlet pipe
RO filtered water outlet pipe
Faucet
Power adapter
Leakage detector
5
6
7
8
9
10
11
Drain connector
4
1
2
3
5
4
10
6
7
8
11
9

Table of Contents

Related product manuals