EasyManua.ls Logo

Philips AUT3015 - Using the System; First-Time Use Preparation

Philips AUT3015
88 pages
Print Icon
To Next Page IconTo Next Page
To Next Page IconTo Next Page
To Previous Page IconTo Previous Page
To Previous Page IconTo Previous Page
Loading...
7
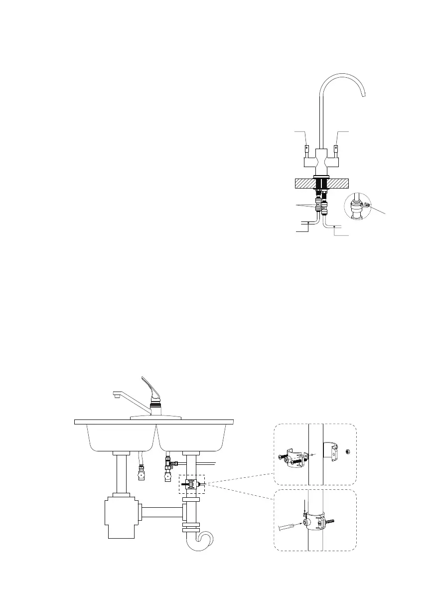
of the faucet. Insert the other end of the 1/4" pipe into the RO ltered water outlet
hole in the back of the system until it stops. Use a clip to secure the pipe at the hole.
Cut another 1/4” pipe with the pipe cutter. Insert
one end of the pipe into a quick connect tting,
and connect the quick connect tting on the
shorter stem of the faucet. Insert the other end
of the 1/4" pipe into the ltered water outlet
hole in the back of the system until it stops.
Use a clip to secure the pipe at the hole.
d. Connect the drain water outlet and the drain connector
Identify the drain outlet location. Drill a 6.5mm hole on the drain pipe. Install the
drain connector according to the diagram. Securely tighten the nuts. Cut a section
of 1/4” pipe. Insert one end of the pipe into the drain outlet hole in the back of
the system until it stops. Use a clip to secure the pipe at the hole. Insert the other
end of the pipe into the drain connector.
Quick connect
ttings
Filtered water
outlet pipe
RO ltered water
outlet pipe
Filtered water
RO ltered water
Clip
(1)
(2)
(3)

Table of Contents

Related product manuals