EasyManua.ls Logo

Philips AUT7006 - Page 61

Philips AUT7006
88 pages
Print Icon
To Next Page IconTo Next Page
To Next Page IconTo Next Page
To Previous Page IconTo Previous Page
To Previous Page IconTo Previous Page
Loading...







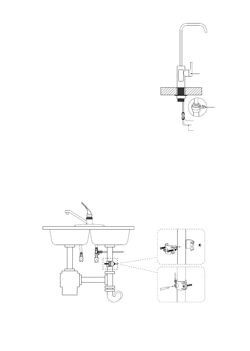
del tubo nel raccordo a connessione

connessione rapida sullo stelo del




















Table of Contents

Related product manuals