EasyManua.ls Logo

Philips AUT7006 - Page 9

Philips AUT7006
88 pages
Print Icon
To Next Page IconTo Next Page
To Next Page IconTo Next Page
To Previous Page IconTo Previous Page
To Previous Page IconTo Previous Page
Loading...
7


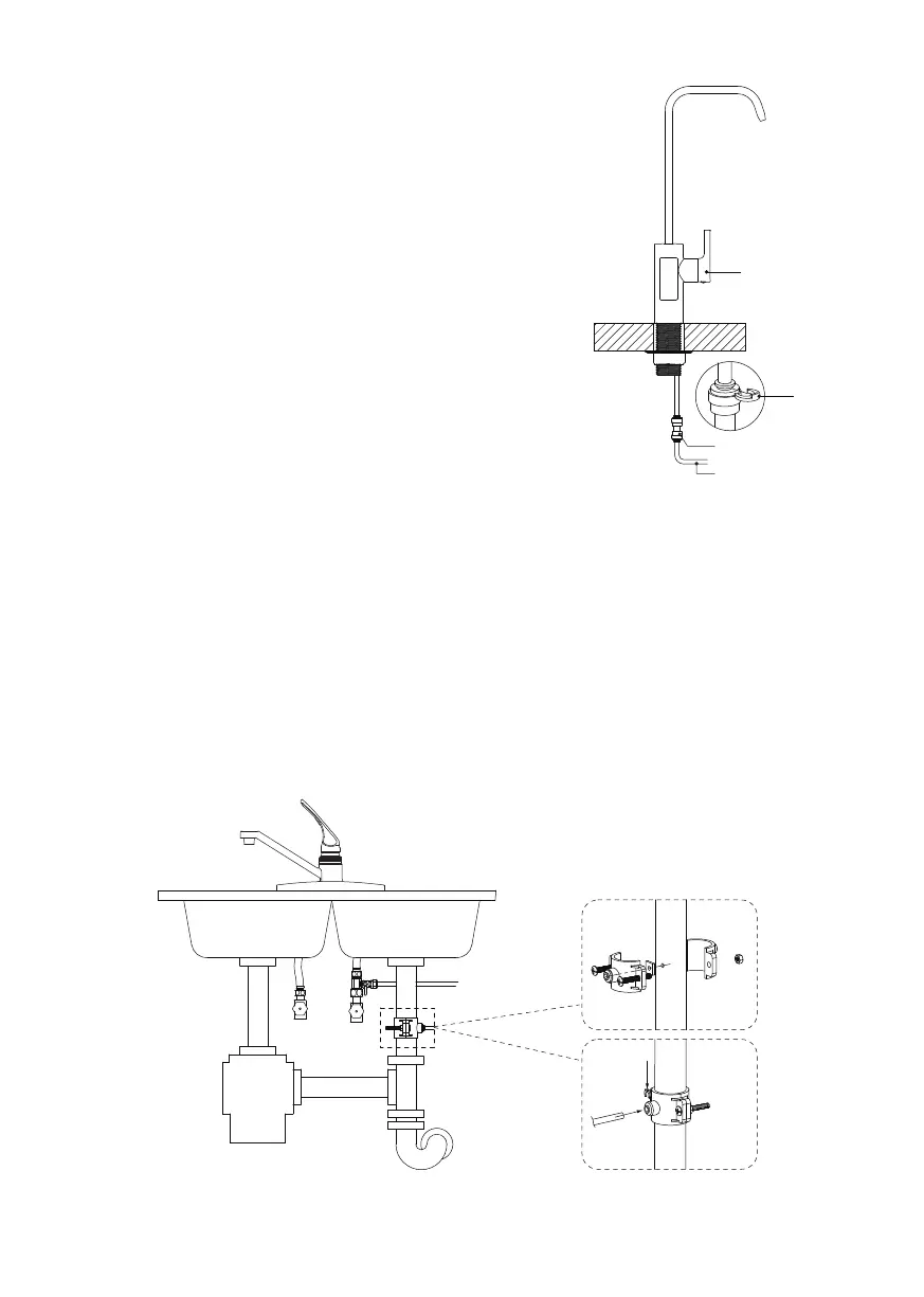
pipe you need to connect the system and























Table of Contents

Related product manuals