EasyManua.ls Logo

Philips FW-C28 - Set Wiring Diagram

Philips FW-C28
80 pages
Print Icon
To Next Page IconTo Next Page
To Next Page IconTo Next Page
To Previous Page IconTo Previous Page
To Previous Page IconTo Previous Page
Loading...
5-1
PCS 103 244
5-1
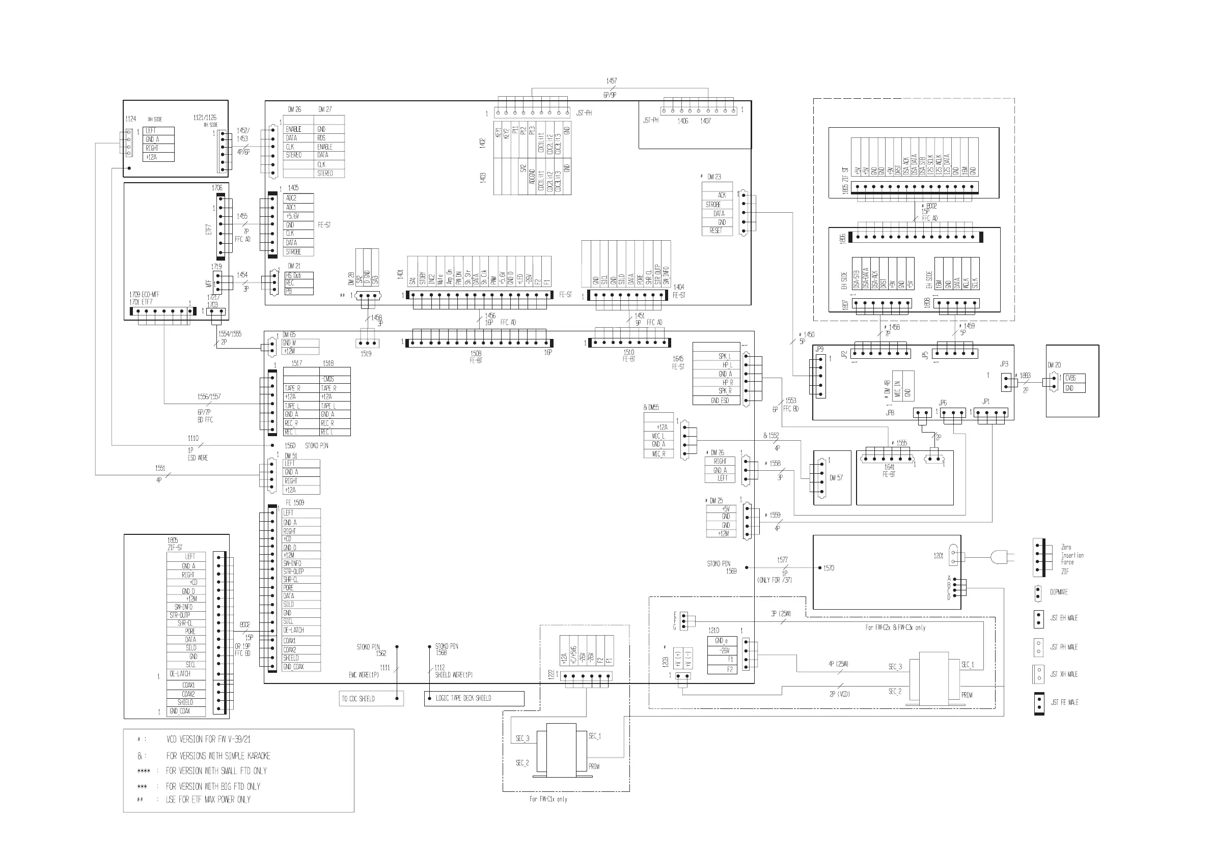
SET WIRING DIAGRAM
3CDC-99
HEADPHONE
****
***
MIC
M/TOP B3P-VH
KARA
3CDC 99
ETF7
ECO5
CDC KEY
ECO-MTF
# CVBS OUT
VCD
TU95
ECO-MTF/
FRONT
# 3CDC SERVO FOR VCD
COMBI
/
HEADPHONE
ECO5 / TUNER95
TRAFO
MAINS
ETF7
TRAFO
4W
# MPEG-ESS
FW-C10/37 3139 119 32240 dd wk939

Other manuals for Philips FW-C28

Related product manuals