EasyManua.ls Logo

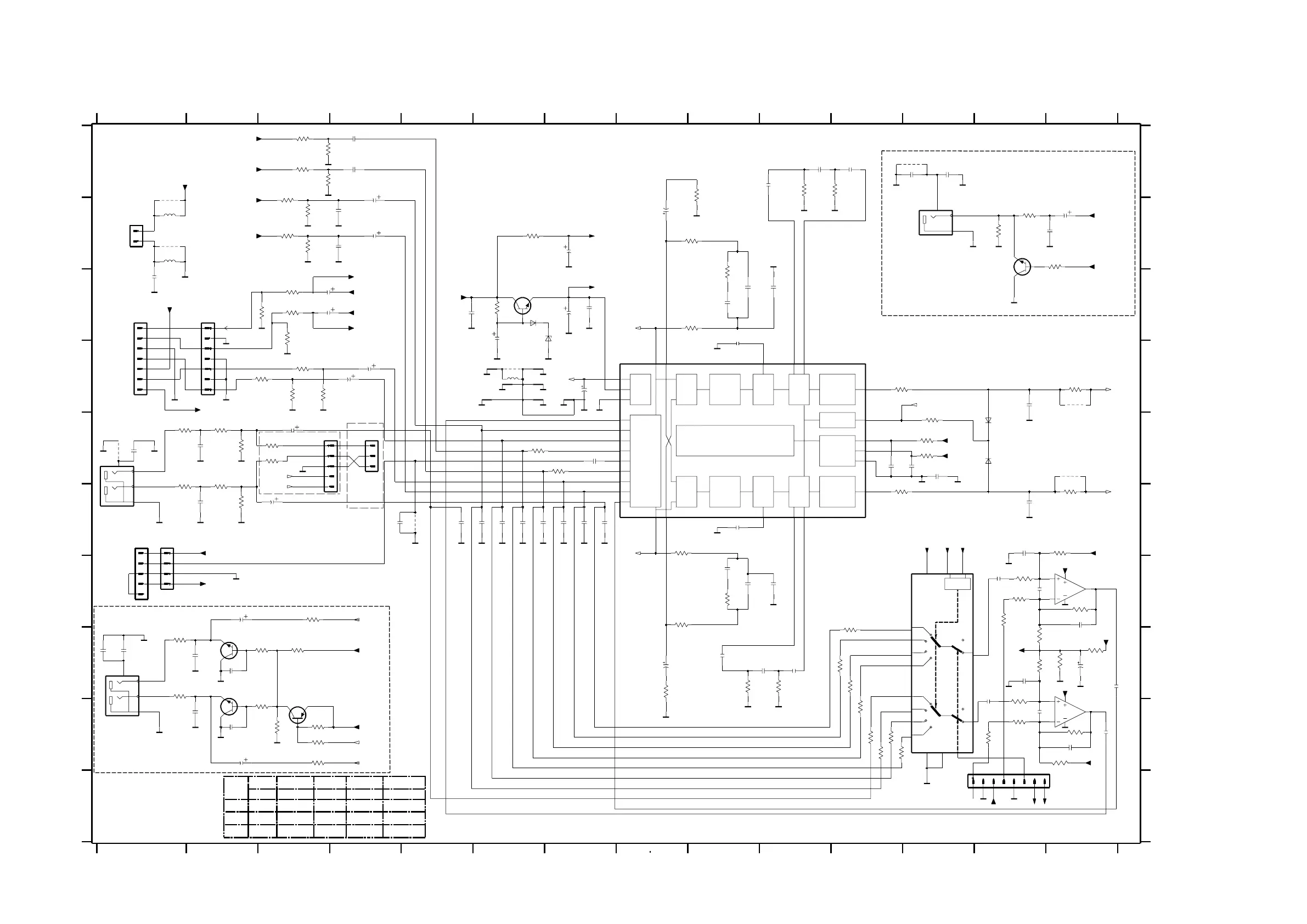
Philips FW-M567/21 - AF11 Board - Circuit Diagram (Part 1)

Philips FW-M567/21
79 pages
Print Icon
To Next Page IconTo Next Page
To Next Page IconTo Next Page
To Previous Page IconTo Previous Page
To Previous Page IconTo Previous Page
Loading...
8-5
8-5
AF11 BOARD - CIRCUIT DIAGRAM (PART 1)
VOLUME I
RIGHT
SUR.
SOURCE
SUPPLY
POWER
SELECTOR
TREBLE
LEFT
VOLUME II
LOGIC
LEFT
REC
IIC BUS
BASS ALC
BASS
LEFT
VOLUME I
LEFT
SUR.
TREBLE
RIGHT
VOLUME II
RIGHT
BASS
RIGHT
L
H
L
H
LOGIC
LSBMSB
LL
LH
HL
HH
LL
LH
HL
HH
#
B
C
D
E
F
G
H
I
J
1501 F1
1502 E3
1503 F1
1504 I1
1505 E4
1506 B1
1510 F1
10K for S
1 2 3 4 5 6 7 8 9 10 11 12 13 14
123
10n for S
4 5 6 7 8 9 10 11 12 13 14
A
B
C
D
E
F
G
2567
1n
H
I
J
A
only for
LINE OUT
18K for S
1531 C1
1532 C2
1691 B12
1692 J14
2201 B7
2202 C7
2203 D7
2204 C6
2205 C5
2206 C7
2501 E2
2502 F2
2503 E3
2504 F3
2505 F5
2506 F7
2507 E7
2511 A4
2512 B4
2513 B4
2514 B4
SIMPLE I.S.
Game Sound Port
2515 F6
2516 F7
2521 A4
2522 A4
2523 F6
2524 F6
2531 D4
2532 D4
2533 F6
2534 F7
2535 C3
2536 C3
2541 B8
2542 H8
2543 C9
2544 G9
2546 F9
10K for S
SOLID STATE
2547 C10
2548 G10
2565 D9
2567 C9
2568 G9
2589 A10
2590 H9
2591 A10
2592 H10
2593 A11
2594 H10
2641 D13
2642 F13
2661 G2
2662 I2
2663 H2
2664 I2
2665 H2
P
OUT
#
# only for
2666 I2
2667 H1
2669 E1
2696 B14
2697 B13
2698 A12
2707 E11
2708 E12
2904 H1
2908 E12
2921 A12
2923 C1
2924 F5
2927 I13
2928 G13
2929 I14
2930 H14
2933 I14
2934 G14
S...for simple I.S.
SUBWOOFER
2935 H14
2936 G13
2937 I13
2938 F13
2939 H13
3201 B6
3202 C6
3208 H14
3435 D3
3436 D3
3437 D3
3438 D3
3501 E1
3502 F1
3503 E2
3504 F2
3505 E2
3506 F2
3507 E3
3508 E3
P
CDR
P
P...provision
10n for S
3511 A3
3512 B3
3513 B3
3514 B3
3521 A3
3522 A3
3523 A3
3524 A3
3525 E6
3526 E7
3531 C3
3532 C3
3533 C3
3534 C3
3543 A9
3544 H8
3545 B9
3546 G8
P
P
3547 C9
3548 F8
3549 C9
3550 G9
3591 A10
3592 H9
3593 A11
3594 H10
3641 D14
3642 F14
3643 E12
3645 D11
3646 F11
3661 G3
3662 I3
3663 H3
3664 I3
3665 H1
P
P
P
AUX IN
P
P
P
3666 H1
3667 H3
3668 I3
3669 I3
3690 B14
3699 B13
3700 B13
3707 E12
3708 E12
3712 I3
3932 H11
3933 H13
3934 H11
3935 H11
3936 F13
3937 I11
3938 I11
3939 G13
S
P
#
3940 I11
3941 I11
3942 I11
3943 H13
3944 G13
3945 G14
3946 H13
3947 I13
3948 I14
3949 I14
3950 H14
3951 I13
3952 G13
S
SIMPLE I.S.
4501 F5
4641 D14
4642 E14
4813 A12
4920 E1
5403 B1
5404 B1
5522 D6
6201 C6
6202 C6
6641 E13
6642 E13
7201 C6
7501 D8
7661 H2
7662 H2
7663 I3
7693 C13
7694 G12
7695-A G14
7695-B H14
9522 D6
9618 B1
9654 B1
only for
P
P
P
PP
P
18K for S
P
GND_EMC
100n
15K
3948
3949
22K
22K
3946
GND_A
1
2
3
4
5
6
7
8
SS_L
GND_A
GND_A
3947
1K5
100n
2921
3202
150R
GND_A
6641
1N4148
1K5
A_CD
-CMOS
A_Aux
3932
10K
A_CD
A_TU
A_Aux
12K
3503
220n
3700
GND_A
5K6
3593
68p
2937
GND_A
2532
4u7
3549
3547
3K3
3514
8K2
GND_A
470n
2591
Line_L
A_Aux
GND_A
GND_EMC
3591
8K2
2568
1n
2548
3n3
GND_A
2504
1u
100n
2908
4501
1u
2503
10n
2923
7661
BC847B
SUB_W
B_REF3
GND_A
GND_A
3n3
2547
3938
10K
820R
3952
1
2
3
4
2669
100n
FE-BT-VK-N
1503
3690
1K
2641
1n
8K2
3513
2505
100p
2K7
3662
470n
2592
100n
2522
2661
1u
2593
470n
5403
2u2
3436
470R
470p
BC847B
7662
3643
2501
+12V_A
12K
1N4148
6201
GND_A
GND_A
4u7
2535
2698
100n
1K5
3944
A_Mic
100u
2201
3546
5K6
2543
470n
2542
33n
39K
9522
1K
3522
A_Tp
3934
9618
GND_A
470R
3525
2707
100p
GND_EMC
5K6
3K3
3699
+12V_A
3504
12K
GND_A
3506
2205
2n2
GND_A
15K
3543
100u
2935
B_REF3
EH-B
1
2
2565
4n7
2511
1u
GND_A
B_REF3
1506
2502
470p
3951
820R
FE-BT-VK-N
1
2
3
4
5
6
7
2708
100p
GND_A
1532
A_HP
TU_Right
2594
470n
A_Tp
2204
220u
3531
2533
100p
4K7
3438
2642
1n
12K
3940
2521
100n
2203
A_Aux
2590
220n
47u
2536
4u7
A_Tp
4813
GND_A
27K
3534
1502
FE-BT-VK-N
1
2
3
4
5
2534
100p
GND_A
MIC_DET
5K6
3550
GND_A
GND_A
GND_A
1n
2664
TU_Left
1692
FE-BT-VK-N
VGref
3935
12K
3950
3K9
2K2
3664
4K7
3208
A_DPL
CD_Right
I2C_Data
2514
1n
3641
220R
A_CD
GND_A
GND_A
2506
100p
GND_A
YKC21-3416
1691
1
3
2
1505
EH-B
1
2
3
1u
2662
150p
2933
150p
2934
VGref
3K3
4u7
2531
VGref
5K6
3936
A_Tp
+12V_A
4642
A_CD
100n
2507
+12V_M
3435
470R
A_Aux
3437
4K7
100n
2904
GND_A
3665
470R
5K6
3545
2524
100p
3594
5K6
GND_A
7
22
12
17
14
15
9
20
1
MUTE_SW_FR
11
18
27
13
28
3
26
4
25
5
24
6
23
8
21
2
7501
TDA7468D
16
10
19
3669
BZX79-C9V1
6202
10K
2
4
3
3942
39K
YKC21-3418
1504
1
3663
2K2
1u
2929
1M
3667
A_Aux
GND_A
16
VDD
7
VEE
8
VSS
+5V6
1
10
11
12
13
14
15
23
4
5
6
9
GND_M
GND_A
7694
HEF4052BT
1
2
3
4
5
6
7
4920
100p
1531
FE-BT-VK-N
1K
3521
2515
GND_A
2663
1n
22u
2202
1501
YKC21-3418
1
2
4
3
5522
3939
68R
GND_A
10K
3941
GND_D
68R
3943
3708
1K
3533
27K
GND_A
1n
2513
4n7
2546
2665
470p
GND_A
3526
470R
3642
220R
1
2
3
4
5
+12V_A
10K
3507
FE-BT-VK-N
1510
A_Mic
3933
5K6
A_Tp
4641
220R
3645
3945
15K
A_Tp
2u2
5404
1N4148
6642
2936
68p
3707
1K
NJM4560M
7695-B
5
6
7
8
4
GND_A
7201
BC847B
Line_R
GND_A
2930
1u
CD_Left
GND_A
4K7
3501
3512
680R
3661
2K7
820R
3201
GND_A
33n
2544
470p
2697
3646
220R
GND_A
A_Tp
2589
4K7
3523
680R
3511
GND_A
A_TU
470R
3666
2
1
8
4
1K5
3532
A_TU
A_Aux
NJM4560M
7695-A
3
9654
GND_A
7693
BC817-25
2516
100p
4K7
3668
2927
1u
2928
1u
2924
1n
3524
4K7
1u
2512
3548
3K3
100K
3712
I2C_Clk
SS_R
100p
2523
15K
3502
4K7
GND_A
3544
3508
10K
3505
-Vkk
22n
2206
2667
100p
100p
2939
2938
A_Tp
8K2
3592
10K
3937
A_CD
2541
470n
22u
2696
7663
BC857B
470p
2666
AB
AB
GND_A_Tp
VOL_R
Mute2
LINE_R
LINE_L
VOL_L
TP_LEFT
A_Aux
+MIX
+9.1V
SS_L
SS_R
TP_REC_L
TP_REC_R
+12V_A(+12V_A)
TP_RIGHT
-CMOS
(GND_A)
(USB_L)
(N.C.)
(N.C.)
(USB_R)
(N.C.)
MIC_DET
VREF
LINE_L
LINE_R
+MIX
ALC_LEVEL
3139 118 56710...8239_210_94374 for 3507 pt4 dd wk0312
Note : Some values may varies, see
respective parts list for correct value.
0
1
G_MIX
1
0
0
0
0X
USB/PClink
0
E11 / E22
0
1
1
Aux
X
CD
1
11
1
E11 / E22 E11 / E22
0
Game_P
1
1
1
00
1
0
G_Normal
0
Tuner
0
E11 / E22
E11 / E22
0
0
0
A / B
3K3 3K3
V
5.4V
0V
1V
5.6V
4.6
4.6V
1V
9.1V
9.8V
11.7V
4.6V
0V
5.9V
0V

Related product manuals