EasyManua.ls Logo

Philips VE8 - Page 54

Philips VE8
140 pages
Print Icon
To Next Page IconTo Next Page
To Next Page IconTo Next Page
To Previous Page IconTo Previous Page
To Previous Page IconTo Previous Page
Loading...
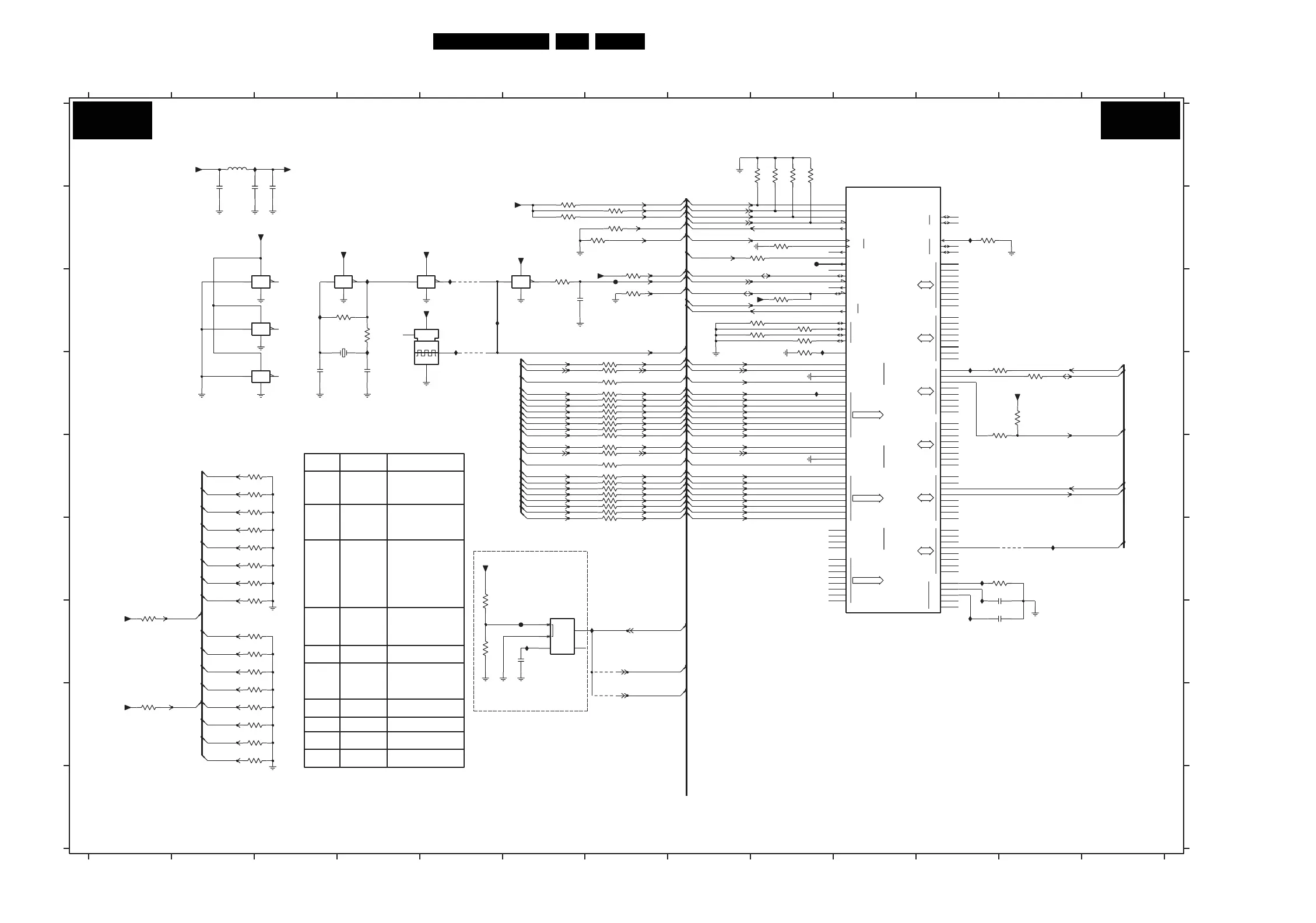
54Q529.1A LA 7.
Circuit Diagrams and PWB Layouts
SSB: STi7100: Control
NC
GND
RST
IN
CD
11
1
1 1
1
SYSB
SYSA
TXP
TXN
RXP
RXN
REF
ATA
CLKIN
DP
DM
REF
C1A
C2A
BYTECLK
BYTECLKVALID
PACKETCLK
ERROR
BYTECLK
BYTECLKVALID
ERROR
PACKETCLK
TSIN1
TSIN1DATA
0
1
2
3
4
5
6
7
BYTECLK
BYTECLKVALID
ERROR
PACKETCLK
TSIN2
TSIN2DATA
4
5
6
7
PIO5
0
1
2
3
4
5
6
7
PIO4
0
1
2
3
4
5
TRIGGER
SYSITRQ
TSIN0
TSIN0DATA
0
1
2
3
4
5
6
7
0
1
2
3
4
5
6
7
PIO1
0
1
2
3
4
5
6
7
PIO0
USB
DAA
0
1
2
3
4
5
6
7
0
1
2
3
SYSBCLKOSC
SYSBCLKINALT
SYSCLKOUT
RTCCLKIN
TMUCLK
RSETIN
WDOGRSTOUT
ASEBRK
IN
OUT
0
1
2
3
NMI
TDI
TMS
TCK
TRST
TDO
6
7
PIO3
0
1
2
3
4
5
6
7
PIO2
E
11
F
G
H
I
1A10 C4
2A18 B2
3A02 D12
3A01 D12
3A13-1 C9
3A13-2 C7
3A13-3 C9
3A13-4 C7
3A14 B9
3A16 B7
3A18 B9
RESERVED
123 45678 910111213
1 10 12 13
A
B
C
D
E
MODE[15]
Reserved
F
G
2A19 B2
2A20 B3
2A21 C6
2A22 D3
2A23 D4
2A24 F12
2A25 G12
2A26 G6
3A19 H1
3A20-1 A9
3A20-2 A9
3A20-3 A9
3A20-4 A9
3A21 G3
2 3 45678 9
MODE[9:8]
3A28 C4
3A29-1 E3
3A29-2 E3
3A29-3 F3
3A29-4 E3
3A30-1 F3
3A30-2 F3
H
I
A
B
C
D
Mode pin
MODE[10]
EMIADDR[10:9]
STx71000 master/slave mode
PCMOUT3
MODE[3:2]
3A32-3 H3
3A33 B11
3A34 F12
3A35 H3
3A36-1 H3
3A36-2 H3
3A25-1 C8
3A25-2 C9
3A25-3 C8
3A25-4 C9
3A26 C6
3A27 C4
MODE[7:4]
EMIADDR[2:1]
PLL1 startup configuration
PLL0 startup configuration
Reserved
3A30-3 F3
3A30-4 F3
3A31-2 G3
3A31-3 G1
3A31-4 H3
3A32-1 G3
MODE[12:11]
MODE[1:0]
Reserved
MODE[16]
EMI banks port size at boot
Reserved
Purpose
PCMOUT2
Long resetout mode
STI7100: CONTROL
EMIADDR[14]
3A40-1 E7
3A40-2 E7
3A40-3 E7
3A41-1 E7
3A41-2 E7
3A41-3 E7
3A37-1 D7
3A37-2 D7
3A37-3 D7
3A38-1 D7
3A38-2 D7
3A38-3 D7
EMIADDR[15]
Reserved
EMI pin
MODE[13]
3A45 D12
3A46-1 B7
3A46-2 B7
3A46-3 B6
3A46-4 B6
3A47 G5
3A48 G5
5A10 A2
7A00-4 A10
7A10-1 C3
3A38-4 D7
3A39-1 D7
3A39-2 D7
3A39-3 D7
3A39-4 D7
IA25 D11
PCMOUT4
MODE[14]
EMIADDR[8:5]
EMIADDR[13:12]
7A12 C4
3A41-4 E7
3A42-1 E7
3A42-2 E7
3A42-3 E7
3A42-4 E7
3A44 D11
EMIADDR[4:3]
FA11 B9
FA12 G6
IA10 C9
IA11 D9
IA12 F12
IA16 C4
IA17 C5
IA18 D4
IA19 A3
IA20 C3
IA21 C5
IA22 C6
IA23 B11
7A10-2 C4
7A10-3 C6
7A10-4 C2
7A10-5 C2
7A10-6 D2
7A11 G6
IA27
IA26 G11
IA27 G11
IA28 F11
IA29 G6
IA30 G7
9A21 C5
9A22 C5
9A23 G7
9A24 H7
9A25 F12
FA10 C7
3A39-3
33R
6 3
54
72
33R
3A39-4
33R
3A38-2
10K
3A29-3
3 6
3A38-1
33R
8 1
3A31-3
10K
3A40-2
33R
27
1n0
2A20
2A19
100n
100n
2A18
45
+2V5
+3V3
10K
3A31-4
3A01
10K
100R3A45
100R3A44
5
3
2
4
1
FA12
7A11
NCP303LSN10T1
IA26
9A24
V_LVC04
1
+3V3
3A14
22R
3A13-1
10K
3A25-4
45
3 6
10K
3 6
3A25-3
10K
8
3A41-3
33R
3A42-1
33R
1
33R
3A40-1 1 8
+3V3
RES
3A19
10K
3A34
470R
18p
2A23
RES
7A10-3
74LVCU04APW
5
714
6
6 33A37-3
33R
3A38-4
33R
54
+3V3
9A23
2A26
100n
3A48
1K2
V_LVC04 V_LVC04
3A47
2K2
+3V3
1 8
3A25-1
10K
IA23
IA25
3A02
100R
IA30
5
IA29
10K
3A29-4
4
IA22
IA21
10K
3A30-2
10K
27
3A16
1 8
6 3
10K
3A30-1
72
33R
3A38-3
33R
3A37-2
11
714
10
2
7A10-5
74LVCU04APW
7A10-1
74LVCU04APW
1
714
3A32-1
10K
1 8
27M
1A10
RES
3 6
3A32-3
10K
+3V3
RES
2
7
IA20
6
3A20-2
10K
3A13-3
10K
3
27
IA18
10K
3A29-2
IA17IA16
5
10K
3A46-4
8 1
72
33R
3A37-1
1
3A39-2
33R
10K
3A46-1
10K
3A30-3
3 6
IA11
2A22
18p
RES
10K
3A35
10K
3A20-3
RES
6 3
IA28
IA10
33R
3A39-1 8 1
V_LVC04
27M
2560TK
2
1
4
3
+3V3
15p
7A12
2A21
2A24
10K
3A36-1
1 8
10n
27
V_LVC04
3A36-2
10K
220R
5A10
10K
3A25-2 2 7
3 6
33R
3A42-3
45
10K
3A13-4
3A28
560R
RES
9A22
2A25
10n
9A25
FA11
74LVCU04APW
13
714
12
3
714
4
7A10-6
8
7A10-2
74LVCU04APW
7A10-4
74LVCU04APW
9
714
FA10
3A27
1M0
RES
3A33
1K5
33R
3A40-33 6
3A26
68R
27
+3V3
10K
3A31-2
10K
3A18
3A42-2
33R
27
IA19
33R
3A41-4 4 5
3A41-2
33R
27
33R
3A41-1 1 8
9A21
RES
RES
8 1
IA12
54
3A20-1
10K
10K
3A20-4
RES
6
3A46-3
10K
10K
3A46-2 7
3A30-4
10K
45
E19
3A21
10K
AM2
AM1
AL2
AL1
AL3
AP2
AP3
AP25
AN25
AM25
AC5
AB4
AB5
AA4
AE4
AF4
AM3
AN3
AP1
AN2
AN1
AH1
AH2
AH4
AJ4
AG5
AF5
AE5
AD4
AD5
AC4
E18
D17
D18
AK6
AJ5
AH5
AG4
AK1
AK2
AJ1
AJ2
E27
AN27
E17
AK25
AK26
AK27
AK28
D21
D22
E22
E21
AA34
AA33
Y34
Y33
AA31
Y30
Y31
D16
C1
AP27
AC
33
AB34
AD32
AD30
AD31
AC30
AC31
AB30
AB31
AA30
AB33
AH31
AG30
AG31
AE31
AE30
AE32
AE34
AE33
AD34
AD33
AC34
AL33
AK34
AK33
AJ34
AJ33
AH34
AH33
AJ30
AJ31
AH30
D19
D20
AM32
AP33
AN33
AP34
AN3
4
AM33
AM34
AL32
AL34
AM30
AP31
AN31
AP30
AN30
AN5
AP5
E16
E2027
7A00-4
STI7100YWC
Φ
DIGITAL
INTERFACE
10K
3A13-2
45
1 8
33R
3A42-4
3A29-1
10K
TRIG-IN
JTAG-TMS-ST
JTAG-TCK-ST
JTAG-TRSTn-ST
JTAG-TRSTn-ST
JTAG-TCK-ST
JTAG-TMS-ST
JTAG-TDI-ST
WP-FLASH-ST
RSETIN-ST7100
RESET-ST7100
BUF-RST-TARGETn
RSETIN-ST7100
ST-DL-APP
SDA-SSB
TSI1-ST- STRT
TSI0-ST-D0
TSI0-ST-D1
TSI0-ST-D2
TSI0-ST- D
3
TSI0-ST-D4
TSI0-ST-D5
TSI0-ST-D6
TSI0-ST-D7
TSI1-ST-D0
TSI1-ST-D1
TSI1-ST-D2
TSI1-ST- D 3
TSI1-ST-D4
TSI1-ST-D5
TSI1-ST-D6
TSI1-ST-D7
PCMOUT2
PCMOUT3
CA-MICLK TSI0-ST-CLK
CA-MIVAL TSI0-ST- VA L
CA-MISTRT TSI0-ST- STRT
CA-MDI0
CA-MDI1
CA-MDI2
CA-MDI3
CA-MDI4
CA-MDI5
CA-MDI6
CA-MDI7
CA-MOCLK_VS2
CA-MOVAL
CA-MOSTRT
CA-MDO0
CA-MDO1
CA-MDO2
CA-MDO3
CA-MDO4
CA-MDO5
CA-MDO6
CA-MDO7
TSI1-ST-D5
TSI1-ST-CLK
TSI1-ST- VA L
EMI-A3
EMI-A8
EMI-A7
EMI-A6
EMI-A5
EMI-A10
EMI-A9
PCMOUT4
EMI-A13
EMI-A12
EMI-A14
EMI-A15
EMI-A4
EMI-A1
EMI-A2
27MHZ-3V3
EMI-A14
TMUCLK
CPU-27MHZ
RXD-ASC2
TXD-ASC2
JTAG-TDI-ST
JTAG-TDO-ST
JTAG-TDO-ST
TSI0-ST-CLK
TSI0-ST- VA L
TSI0-ST-D0
TSI0-ST-D1
TSI0-ST-D2
TSI0-ST- D 3
TSI0-ST-D4
TS
I0-ST-D5
TSI0-ST-D6
TSI0-ST-D7
TSI0-ST- STRT
TSI1-ST-CLK
TSI1-ST- VA L
TSI1-ST-D0
TSI1-ST-D1
TSI1-ST-D2
TSI1-ST- D 3
TSI1-ST-D4
TSI1-ST-D6
TSI1-ST-D7
TSI1-ST- STRT
SCL-SSB
ASEBRKn
CPU-27MHZ
TMUCLK
TRIG-IN
TRIG-OUT
27MHZ-3V3
3139 123 6214.4
I_17660_007.eps
110308
B03A
B03A

Related product manuals