EasyManua.ls Logo

Piusi K900 - ELECTRICAL CONNECTION

Piusi K900
31 pages
Print Icon
To Next Page IconTo Next Page
To Next Page IconTo Next Page
To Previous Page IconTo Previous Page
To Previous Page IconTo Previous Page
Loading...
39/124
39 /60
EN
This manual is the property of PIUSI S.p.A. Any reproduction, even partial, is forbidden.
Translated from Italian
Nota bene:
prima di effettuare
un collegamento
con
ALIMENTAZIONE
ESTERNA occorre
RIMUOVERE LE
BATTERIE dal
portabatteria
ATTENTION:
Before the external
power connection,
remove the battery
from battery
housing
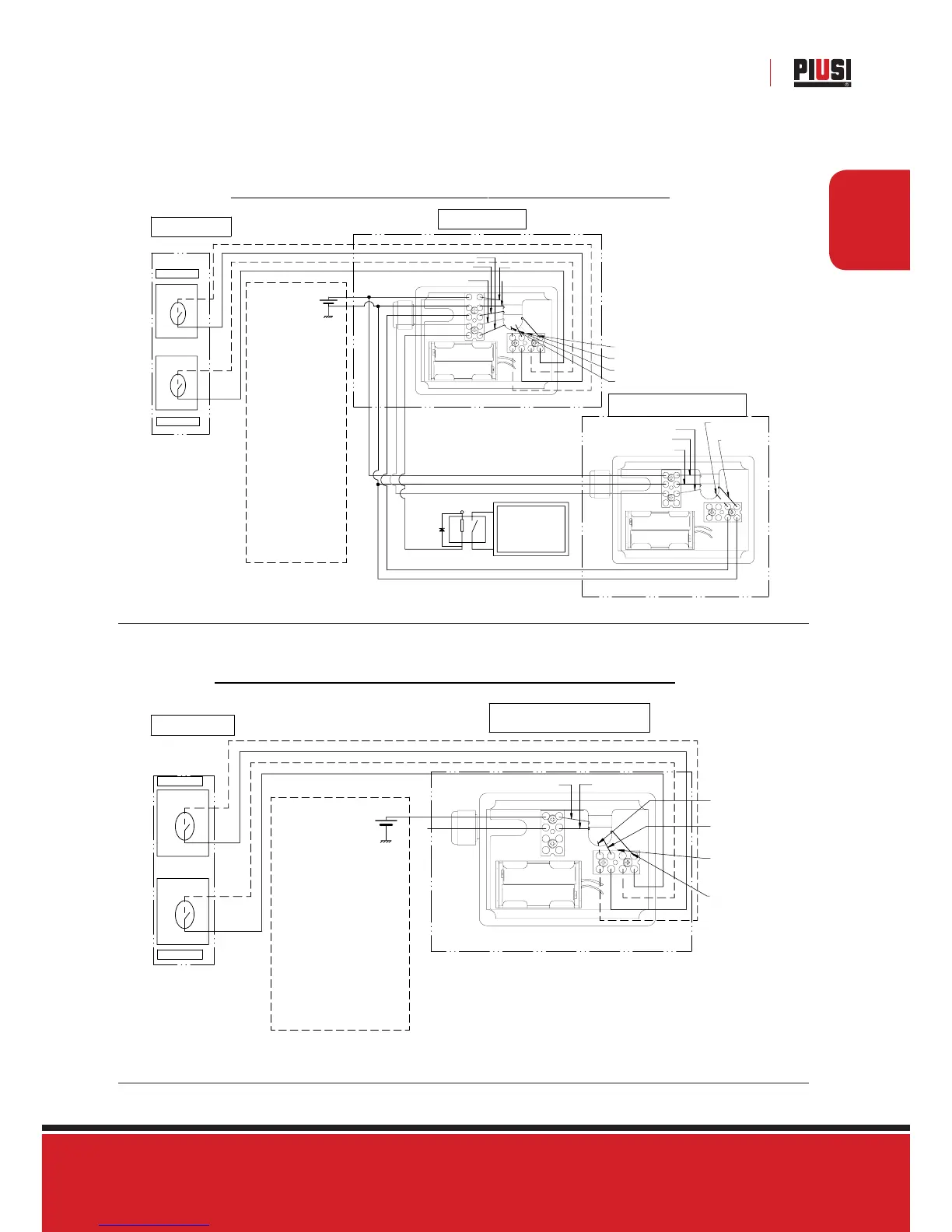
Vcc rosso \ red
Puls OUT blu \ blue
GND nero \ black
PULSER 2 - giallo \ yellow
Sync Reset Verde / Green
GND - Nero / Black
PULSER 01
Pulse OUT
Vcc
GND
GND
Optional
external
Power
Vcc input:
4-12 Vdc
+
-
+
+
SYNC RESET
K900 con PULS OUT /
K900 with PULSE OUT
Display Remoto con PULS IN /
Remote Display with PULSE IN
Vcc rosso \ red
Sync Reset Verde / Green
GND nero \ black
Puls IN
bianco \ white
GND
Nero / Black
Vcc
+
+
SCHEMA COLLEGAMENTI ELETTRICI / ELECTRICAL CONNECTION
PULSER 02
SEGNALAZIONE
DI ALLARME \
ALARM
(OPTIONAL)
Vcc
(MAX 24 Vdc)
GND
PULSER 1- bianco \ white
GND - Nero / Black
CAMERA DI MISURA /
MEASURE BOX
ALLARM OUT marrone \ brown
ALARM
OUT
RELE'
Nota bene:
prima di effettuare un
collegamento con
ALIMENTAZIONE
ESTERNA occorre
RIMUOVERE LE
BATTERIE dal
portabatteria
ATTENTION:
Before the external
power connection,
remove the battery from
battery housing
Vcc rosso \ red
GND nero \ black
PULSER 2
giallo \ yellow
GND
Nero / Black
PULSER 01
Vcc
GND
Optional external
Power Vcc
input: 4-12 Vdc
+
-
+
+
K900 SENZA PULS OUT /
K900 without PULSE OUT
SCHEMA COLLEGAMENTI ELETTRICI / ELECTRICAL CONNECTION
PULSER 02
PULSER 1
bianco \ white
GND
Nero / Black
CAMERA DI MISURA /
MEASURES BOX