EasyManua.ls Logo

Polon-Alfa 4100 - 10.1 Power Supply Connection

Default Icon
72 pages
Print Icon
To Next Page IconTo Next Page
To Next Page IconTo Next Page
To Previous Page IconTo Previous Page
To Previous Page IconTo Previous Page
Loading...
 

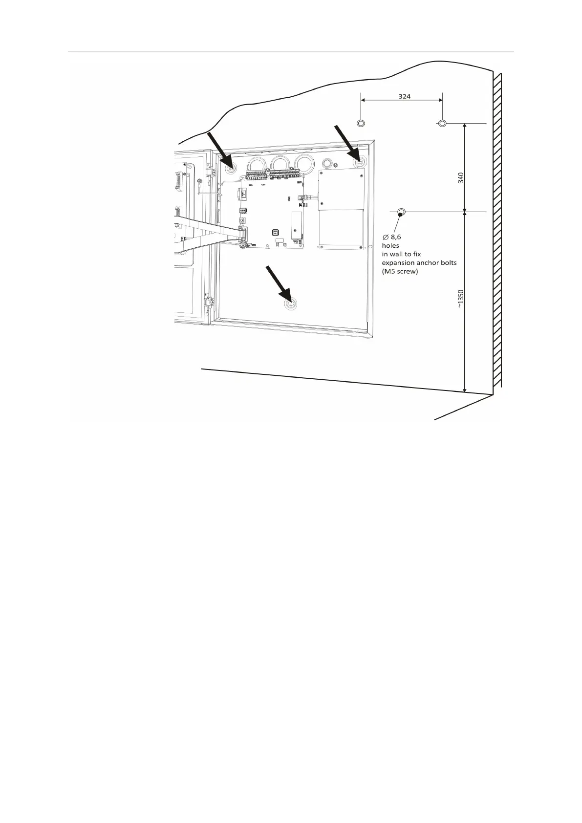
10.1 Power supply connection



    

10.2 Line elements installation


             
     

  



Table of Contents

Related product manuals