EasyManua.ls Logo

Polon-Alfa 4100 - 11 OPERATION AND MAINTENANCE; 11.1 Proper Operation Rules

Default Icon
72 pages
Print Icon
To Next Page IconTo Next Page
To Next Page IconTo Next Page
To Previous Page IconTo Previous Page
To Previous Page IconTo Previous Page
Loading...
 


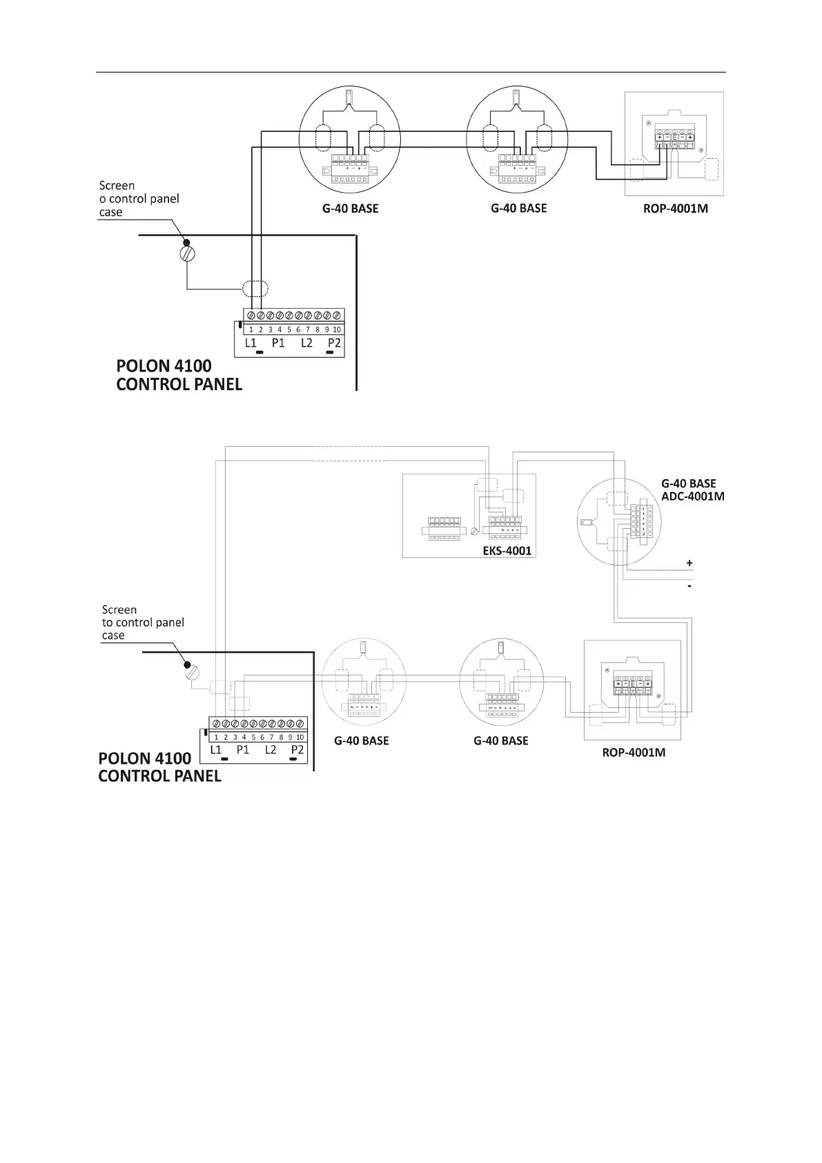
11 OPERATION AND MAINTENANCE
11.1 Proper operation rules
          


              




Table of Contents

Related product manuals