EasyManua.ls Logo

PowerMaster PM-3500 - Page 27

PowerMaster PM-3500
28 pages
Print Icon
To Next Page IconTo Next Page
To Next Page IconTo Next Page
To Previous Page IconTo Previous Page
To Previous Page IconTo Previous Page
Loading...
26
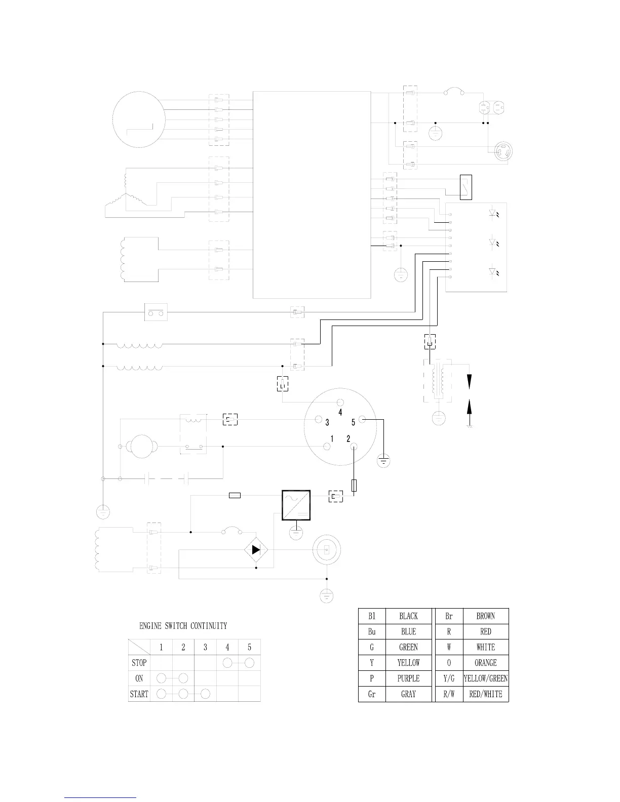
2600iE, 3500iE
Invert cell
OVERLOAD
LOW OIL
M
Oil sensor
R
R
BL
O
BU
BL
R
BU
BU
BL
BL
R
BL
BL
BL
R
BL
W
W
BL
BL
BL
Stepping motor
Main
Control
winding
winding
Economic
switch
R
O
W
BL
BU
R
O
BL
PI
BU
BL
W
Spring winding
Ignition winding
BL
BR
GR
P
Y/G
W
O
R
BU
START MOTOR
BATTERY
+
-
BU
BU
DC
winding
Spark
plug
R
High
pressure
wrap
Y/G
RECTIFIER
OUTPUT
P
Engine Switch
BL
BREAKER
R
W
BL
W
BL
Y/G
BREAKER
R
Gr
W
R
FUSE 3A
FUSE 3A