EasyManua.ls Logo

Powermatic DDS-225 - Page 40

Powermatic DDS-225
44 pages
Print Icon
To Next Page IconTo Next Page
To Next Page IconTo Next Page
To Previous Page IconTo Previous Page
To Previous Page IconTo Previous Page
Loading...
40
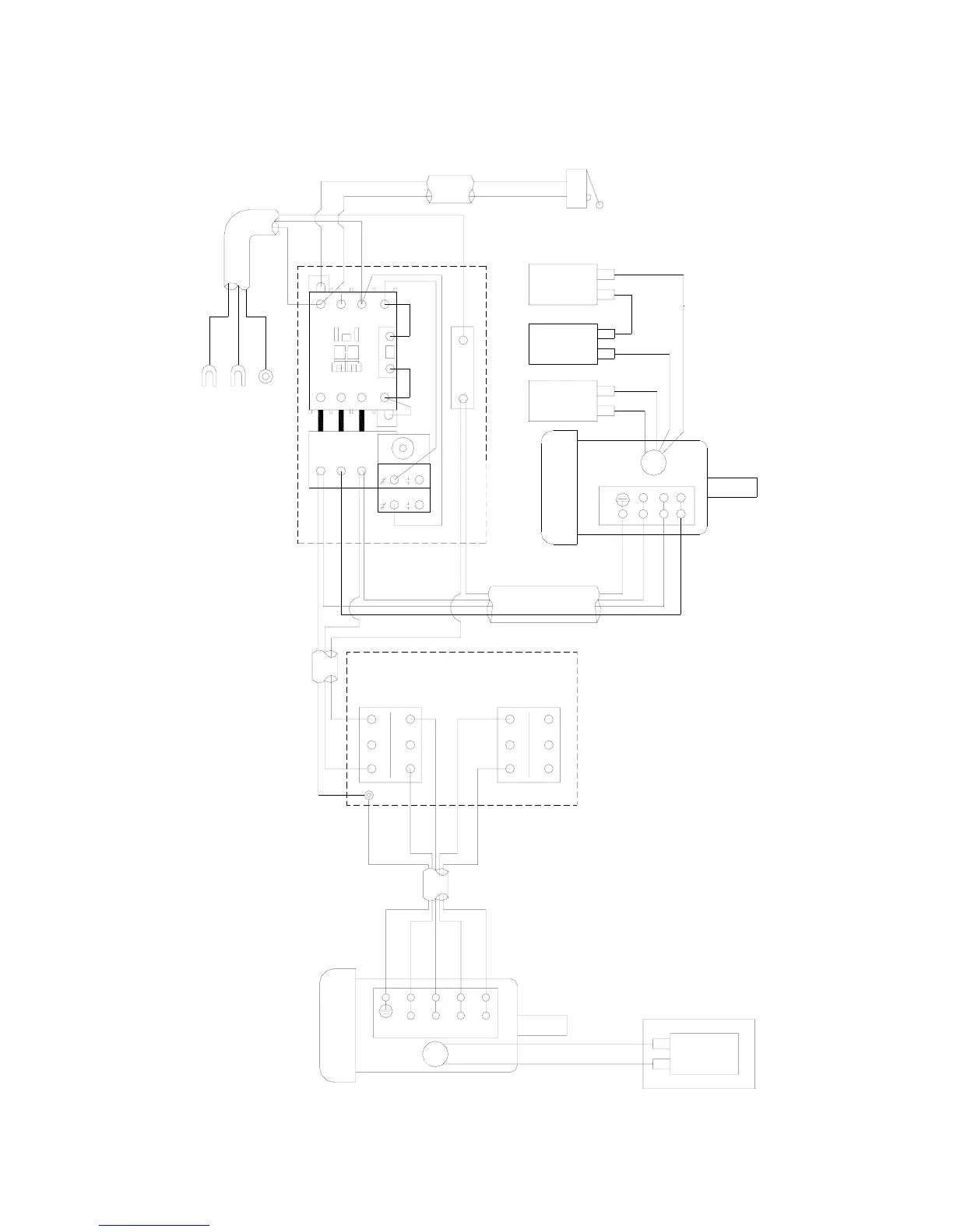
DDS-237 Sander – 7.5HP, 1Ph, 230V
5L3
A1
3L2
13NO
1L2
17
18
2T1
4T2
6T3
14NO
2T1
4T2
6T3
A2
GROUND
GREEN
WHITE
BLACK
BLACK
WHITE
GREEN
BLACK
WHITE
9896
95 97
250VAC
250MFD
450VAC
50UF
GREEN
BLACK
WHITE
GREEN
BLACK
WHITE
WHITE
BLACK
GREEN
WHITE
YELLOW
S
6
R
FRONT
U
BACK
BLACK
RED
V
5
350VAC
10UF
6
45
1
BLACK
RED
WHITE
YELLOW
GREEN
WHITE
BLACK
GREEN
GREEN
BLACK
WHITE
REVERSING
SWITCH
250VAC
250MFD
LIMITED
SWITCH
RED
RED

Related product manuals