EasyManua.ls Logo

Powermatic DDS-225 - Page 42

Powermatic DDS-225
44 pages
Print Icon
To Next Page IconTo Next Page
To Next Page IconTo Next Page
To Previous Page IconTo Previous Page
To Previous Page IconTo Previous Page
Loading...
42
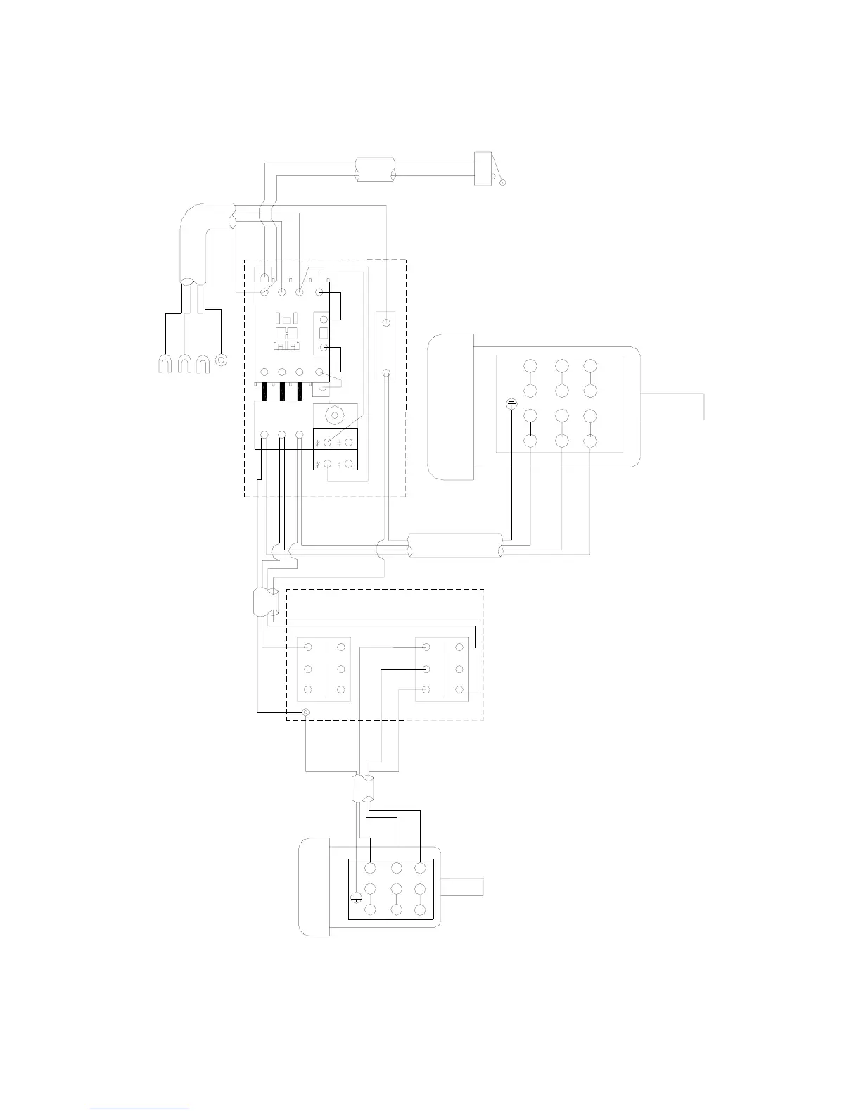
DDS-237 Sander – 10HP, 3Ph, 460V
5L3
A1
3L2
13NO
1L2
17
18
2T1
4T2
6T3
14NO
LIMITED
SWITCH
RED
RED
RED
RED
RED
U1
V1
W1
W5
V5
U5
U2
V2
W2
U
W
L2
L3
RED
GREEN
WHITE
RED
BLACK
V
V2
W1
W
W2
U1
U
U2
V1
Z1
X1
Y1
2T1
4T2
6T3
A2
GROUND
GREEN
WHITE
BLACK
BLACK
WHITE
GREEN
BLACK
WHITE
9896
95 97
GREEN
BLACK
WHITE
GREEN
BLACK
WHITE
WHITE
BLACK
GREEN
WHITE
L1
FRONT
BACK
BLACK
RED
V
WHITE
BLACK
GREEN
GREEN
BLACK
WHITE
REVERSING
SWITCH

Related product manuals