EasyManua.ls Logo

Primus MB 90 - 4. INSTALLATION; 4.1. HANDLING, TRANSPORT AND STORAGE

Primus MB 90
41 pages
Print Icon
To Next Page IconTo Next Page
To Next Page IconTo Next Page
To Previous Page IconTo Previous Page
To Previous Page IconTo Previous Page
Loading...
6 INSTALLATION AND MAINTENANCE MANUAL PUBLICATION DATE 07/04 513289
ALTERNATIVE
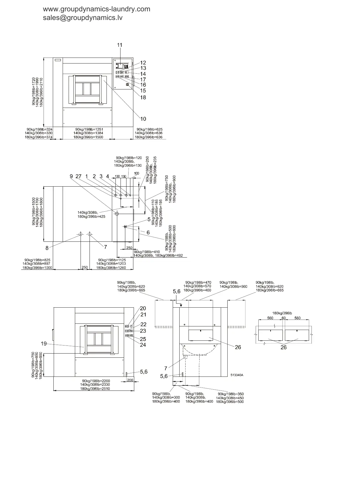
3.2. DIMENSIONS AND COMPONENTS OF THE MACHINE
1. Hard cold water inlet
2. Soft cold water inlet
3. Hot water inlet
4. Steam inlet
5. Supply of pressure air
6. Power supply
7. Main drainage valve
8. Recycling drainage valve
9. Venting of the machine
10. Door of loading (dirty side)
11. Programmer
12. Change-over switch
13. Signal of machine running (+ operating
air pressure)
14. Centralstop
15. Button of door unlocking
16. Button of drum positioning
17. Button of door locking
18. Main switch
19. Door of unloading (clean size)
20. Signal of loading
21. Centralstop
22. Button of door locking
23. Button of activation of loading side
24. Button of door unlocking
25. Button of drum positioning
26. Soap hoppers
27. Soft cold water inlet into soap
hoppers
Obr. 3.2. Placement of components on the machine (dimensions are given in mm)
www.groupdynamics-laundry.com
sales@groupdynamics.lv

Related product manuals