EasyManua.ls Logo

Pro-face GP-4501TW - Page 190

Pro-face GP-4501TW
241 pages
Print Icon
To Next Page IconTo Next Page
To Next Page IconTo Next Page
To Previous Page IconTo Previous Page
To Previous Page IconTo Previous Page
Loading...
190
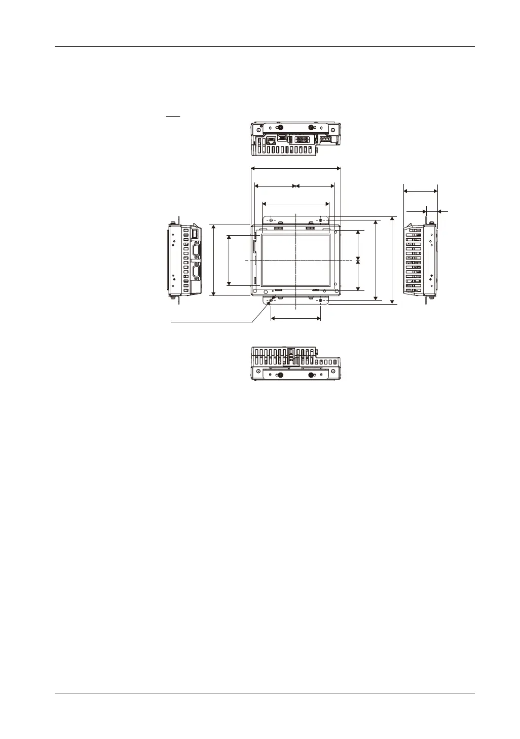
<Resin BossType/ Standard Mount and Flat Mount : PFXGP4301TADR>
Installation with Installation Fasteners attached to the top and bottom surfaces of the
GP unit
1 Right Side
2 Front
3 Left Side
4 Bottom
5 Top


PP
LQ
 


 
 












[[FRXQWHUVLQN
[[FRXQWHUVLQN
7RXFK3DQHO$FWLYH$UHD
7RXFK3DQHO
$FWLYH$UHD

Table of Contents

Other manuals for Pro-face GP-4501TW

Related product manuals