EasyManua.ls Logo

Pro-face GP-4501TW - Page 196

Pro-face GP-4501TW
241 pages
Print Icon
To Next Page IconTo Next Page
To Next Page IconTo Next Page
To Previous Page IconTo Previous Page
To Previous Page IconTo Previous Page
Loading...
196
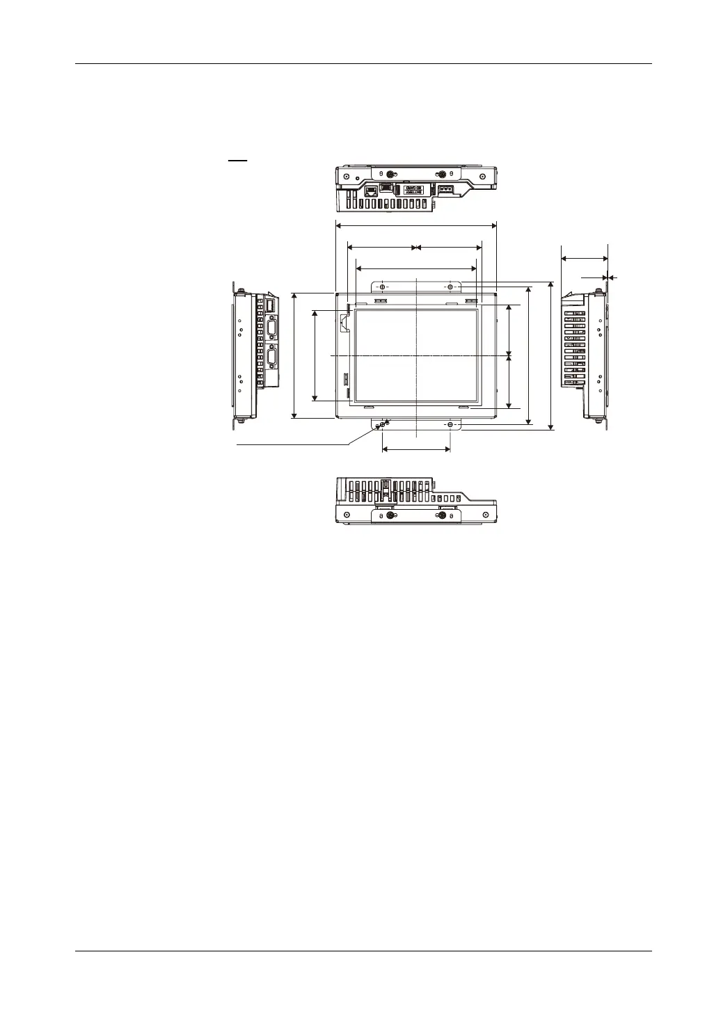
<Panel Type/ Flat Mount : PFXGP4401TADR>
Installation with Installation Fasteners attached to the top and bottom surfaces of the
GP unit
1 Right Side
2 Front
3 Left Side
4 Bottom
5 Top
PP
LQ

















7RXFK3DQHO$FWLYH$UHD
7RXFK3DQHO
$FWLYH$UHD
[[FRXQWHUVLQN
[[FRXQWHUVLQN
 





Table of Contents

Other manuals for Pro-face GP-4501TW

Related product manuals