EasyManua.ls Logo

pro.point 8553521 - Page 28

pro.point 8553521
28 pages
Print Icon
To Previous Page IconTo Previous Page
To Previous Page IconTo Previous Page
Loading...
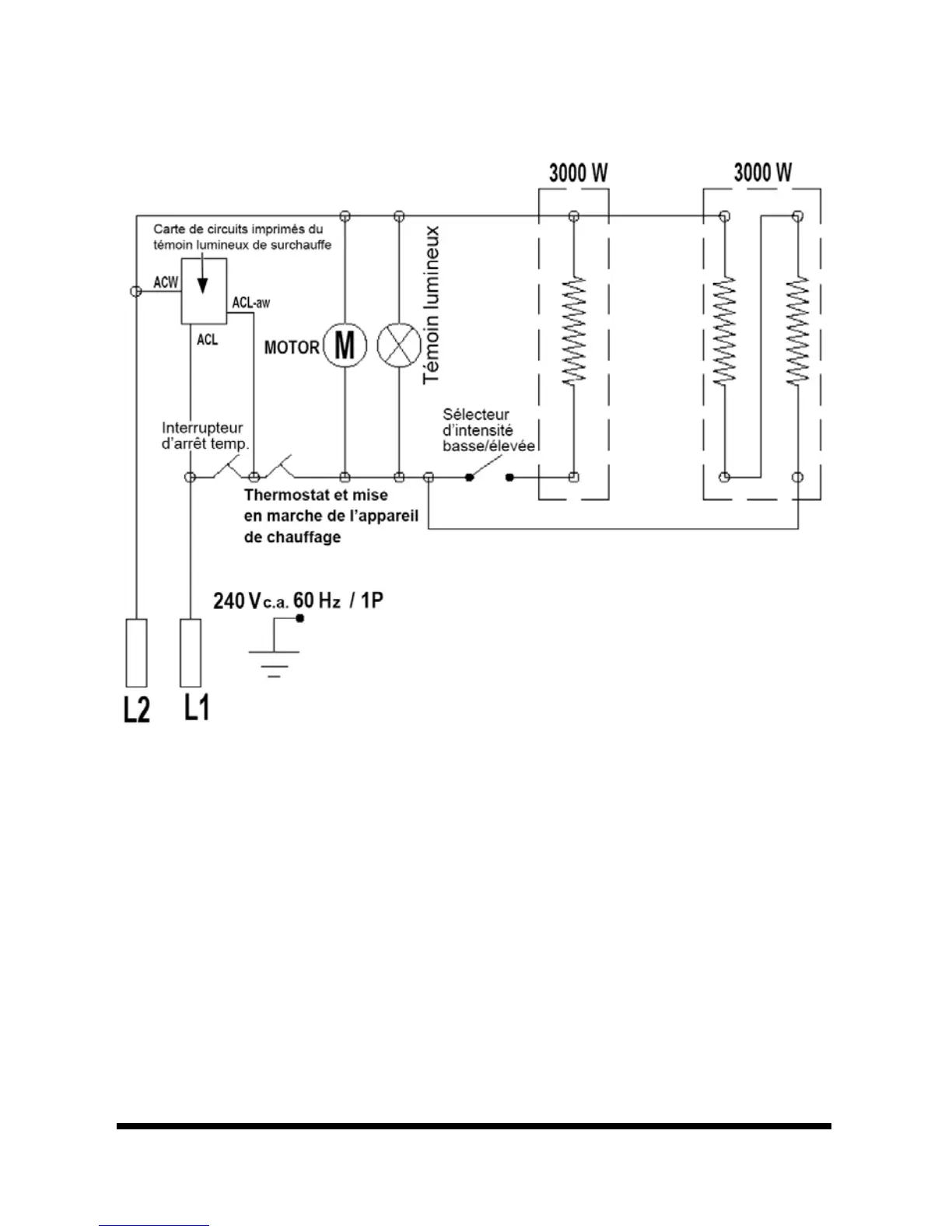
8553521 APPAREIL DE CHAUFFAGE D'ATELIER, 6 000 W V 1,0
14 En cas de questions techniques, appelez le 1-800-665-8685
APPENDIX A