EasyManua.ls Logo

prodelin 3.8M - Page 8

prodelin 3.8M
36 pages
Print Icon
To Next Page IconTo Next Page
To Next Page IconTo Next Page
To Previous Page IconTo Previous Page
To Previous Page IconTo Previous Page
Loading...
4096-535
PRODELIN CORPORATION 3.8M C-BAND Rx/Tx ANTENNA SYSTEM
6
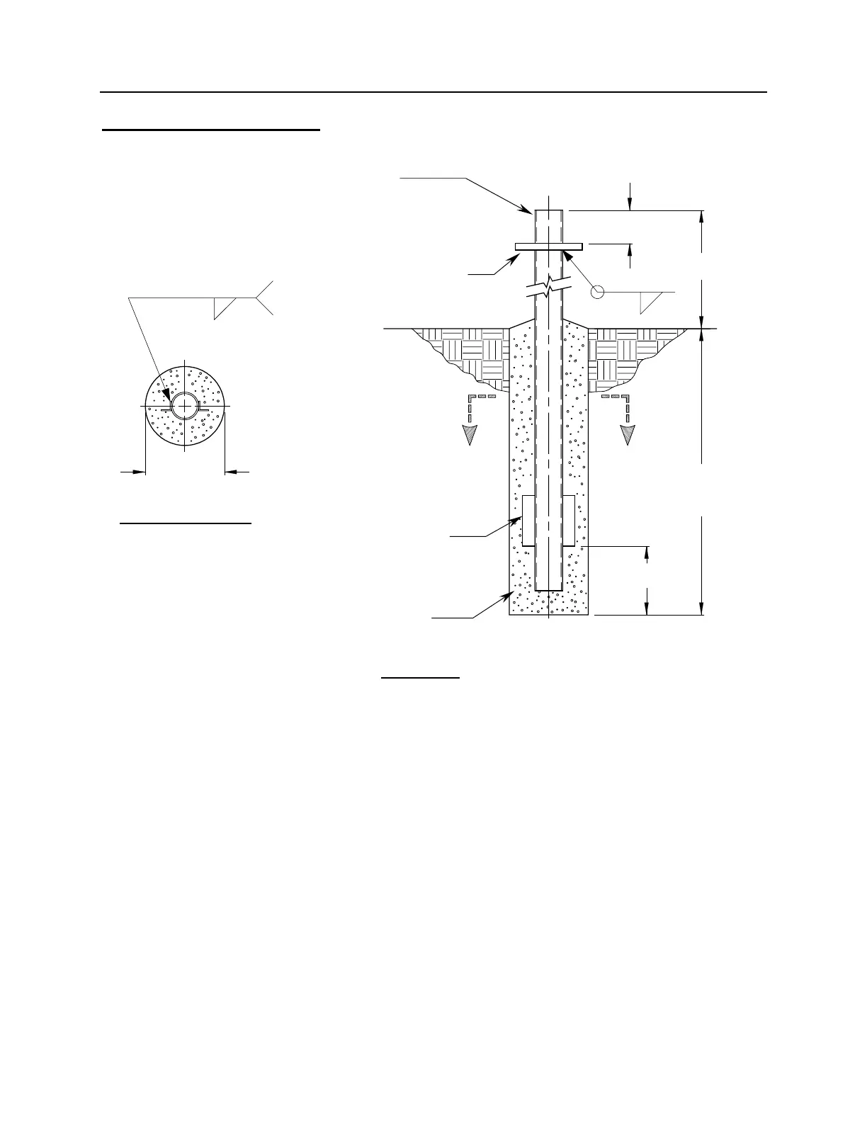
IN-GROUND MAST MOUNT
NOTES:
1. 2 x 2 x 1/4 HRS ANGLE & 10" SCHEDULE 40 PIPE SHOULD CONFORM WITH ASTM A36
STRUCTURAL STEEL.
2. ALL CONCRETE SHOULD CONFORM TO BUILDING CODE STANDARDS AND HAVE A MINIMUM
COMPRESSIVE STRENGTH OF 3000 PSI AT 28 DAYS. (PER ACI-318-77)
3. SOIL BEARING CAPACITY SHOULD BE NO LESS THAN 2000 PSF.
4. CONCRETE SHOULD BE POURED AGAINST UNDISTURBED SOIL.
5. ALLOW CONCRETE 24 HOUR SET TIME BEFORE INSTALLATION OF ANTENNA.
6. THE ANTENNA SHOULD BE PROPERLY GROUNDED TO MEET APPLICABLE LOCAL CODES.
7. MINIMUM DEPTH AS SHOWN OR EXTENDED TO LOCAL FROST LINE.
(PRODELIN CORP. DOES NOT REPRESENT OR WARRANT THAT ANY PARTICULAR DESIGN OR SIZE
OF FOUNDATION IS APPROPRIATE FOR ANY LOCALITY OR EARTH STATION INSTALLATION.)
5.50
60.0
.4
2 - 5
2 PL
A
A
36.0
120.0
SEE NOTE #7
30.0
SECTION A-A
2 x 2 1/4 HRS ANGLE
24 INCHES LONG
TYPICAL 2 PLACES
SLIP FLANGE
(0156-898)
10” SCH 40 PIPE
(10.75 O.D.)
ESTIMATE 2 YARDS CONCRETE
Figure 1.

Related product manuals