EasyManua.ls Logo

Progress Lighting AirPro P2586 - Installing Your Fan

Default Icon
32 pages
Print Icon
To Next Page IconTo Next Page
To Next Page IconTo Next Page
To Previous Page IconTo Previous Page
To Previous Page IconTo Previous Page
Loading...
3. Installing Your Fan
Tools Required
Phillips screw driver or straight slotted screw
driver, adjustable wrench, step ladder, and
wire cutters.
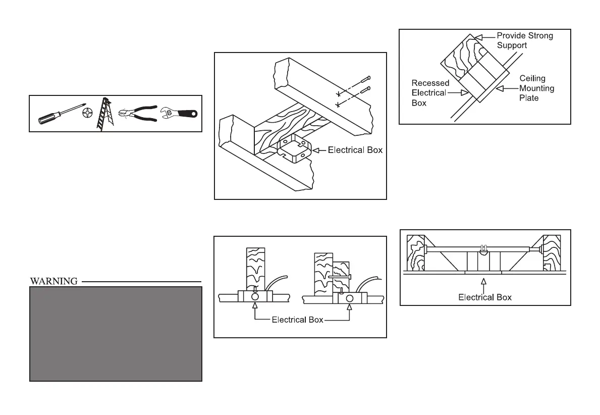
Mounting Options
If there isn’t an existing electrical box, then
read the following instructions. Disconnect
the power by removing fuses or turning off
circuit breakers.
Secure the electrical box directly to the building
structure. Use appropriate fasteners and
building materials. The electrical box and
its support must be able to fully support the
moving weight of the fan (at least 35 lbs.).
Do not use plastic electrical boxes.
Figures 1, 2, and 3 are examples of different
ways to mount the electrical box.
Note: You may need a longer downrod to
maintain proper blade clearance when installing
on a steep, sloped ceiling. The maximum
angle allowable is 20˚. If the canopy touches
downrod, remove the decorative canopy
bottom cover and turn the canopy 180˚ before
attaching the canopy to the mounting plate.
To hang your fan where there is an existing
xture but no ceiling joist, you may need an
installation hanger bar as shown in Figure 4.
TO REDUCE THE RISK OF FIRE, ELECTRIC
SHOCK OR PERSONAL INJURY, MOUNT
TO OUTLET BOX MARKED “ACCEPTABLE
FOR FAN SUPPORT OF 35LBS. (15.9 KG) OR
LESS”, AND USE SCREWS PROVIDED WITH
THE OUTLET BOX. ELECTRICAL BOXES
COMMONLY USED FOR THE SUPPORT OF
LIGHTING FIXTURES MAY NOT BE ACCEPT-
ABLE FOR FAN SUPPORT AND MAY NEED TO
BE REPLACED. CONSULT A QUALIFIED ELEC-
TRICIAN IF IN DOUBT.
Figure 1
Figure 2
Figure 4
Figure 3

Related product manuals