EasyManua.ls Logo

Protec COMPACT2 SX 2 - Page 36

Protec COMPACT2 SX 2
58 pages
Print Icon
To Next Page IconTo Next Page
To Next Page IconTo Next Page
To Previous Page IconTo Previous Page
To Previous Page IconTo Previous Page
Loading...
36 COMPACT 2
TM
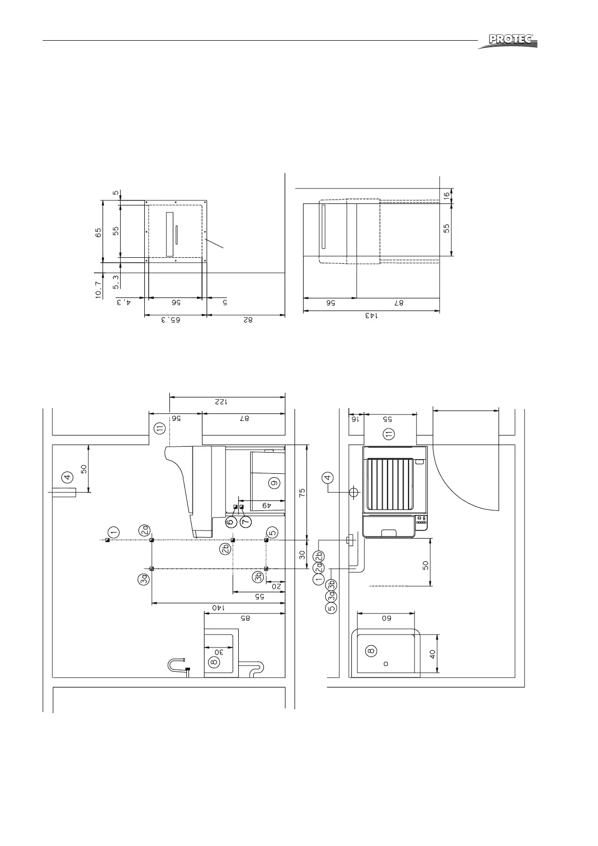
Installation Data
®
Through the wall mounting film output
- Film output to the light room
Through the wall monting set
1281 0 0000
Wall break through
for film exit
Dimensions in cm
Working space
Door min. 69
Film exit height

Table of Contents

Related product manuals