EasyManua.ls Logo

Protec COMPACT2 SX 2 - Installation Data Details

Protec COMPACT2 SX 2
58 pages
Print Icon
To Next Page IconTo Next Page
To Next Page IconTo Next Page
To Previous Page IconTo Previous Page
To Previous Page IconTo Previous Page
Loading...
COMPACT 2
TM
35
Installation Data
English
®
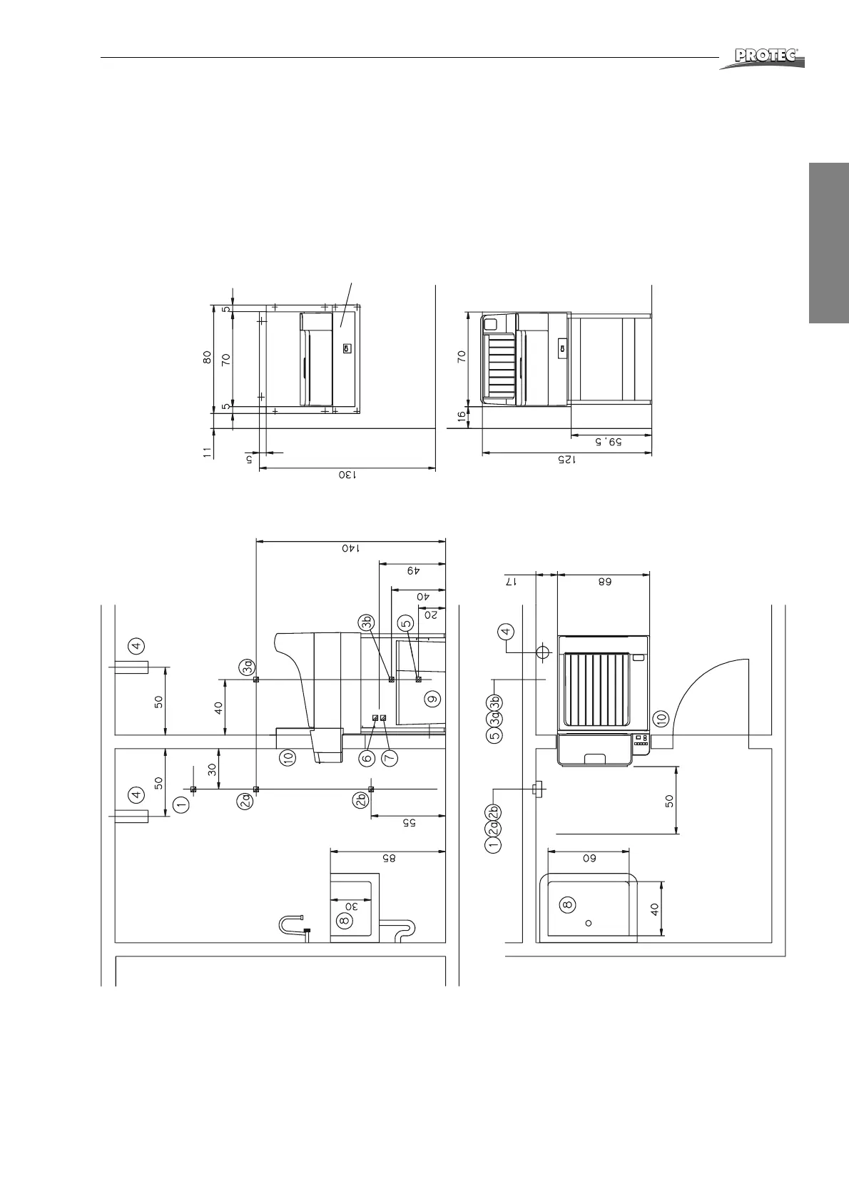
Installation Data
Through the wall mounting film infeed
- Machine in light room
Existing wall break through
If the machine is to be mounted to an existing wall break through of a PROTEC
COMPACT 45 machine, then the wall plate order-no. 0280-0-0101 will be required.
For “Through the wall mounting film output” the COMPACT 2 can be directly mount-
ed to an existing wall break through of a PROTEC COMPACT 45.
Through the wall
monting set
1280 0 0000
Wall break through
for film input
Dimensions in cm
Working space

Table of Contents

Related product manuals