EasyManua.ls Logo

Protekt RJ200 - Periodic Inspection of the Device; Work Field Range When Using One Device RJ200

Protekt RJ200
22 pages
Print Icon
To Next Page IconTo Next Page
To Next Page IconTo Next Page
To Previous Page IconTo Previous Page
To Previous Page IconTo Previous Page
Loading...
DAVIT
INSTRUCTION MANUAL
EN 795:2012 Class B
Reference number:
RJ200
BEFORE USE READ THIS MANUAL CAREFULLY
edition: 3/25.02.2019 pl
p.
20
Periodic inspection of the device
According to EN 365 it is recommended to perform periodic inspections of the device RJ200. Periodic
inspection should be carried out by a service point authorized by the manufacturer. Periodic inspection (min.
once a year) should be carried out by a competent person or a service point authorised by the manufacturer.
In case of any doubts please contact the manufacturer. Inspection activities:
• Inspection of weld seams, deformations, cracks
• Inspection of retractable type fall arrester
• Inspection of bolts, pins, cotters
• Quality assessment of surfaces, corrosion centres
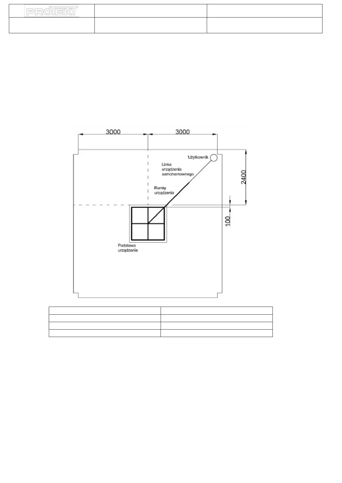
Work field range when using one device RJ200
Place base of the device within 100mm from the site where works are performed.
Użytkownik User
Linka urządzenia samohamownego Line of retractable type fall arrester
Ramię urządzenia Arm of device
Podstawa urządzenia Base of device
Dimensions are given in millimetres [mm].