EasyManua.ls Logo

PTC PT6315 - Page 13

PTC PT6315
26 pages
Print Icon
To Next Page IconTo Next Page
To Next Page IconTo Next Page
To Previous Page IconTo Previous Page
To Previous Page IconTo Previous Page
Loading...
Tel : 886-2-29162151
Fax: 886-2-29174598
VFD Driver/Controller IC PT6315
PT6315 v2.0 Page 13 Sep. 2002
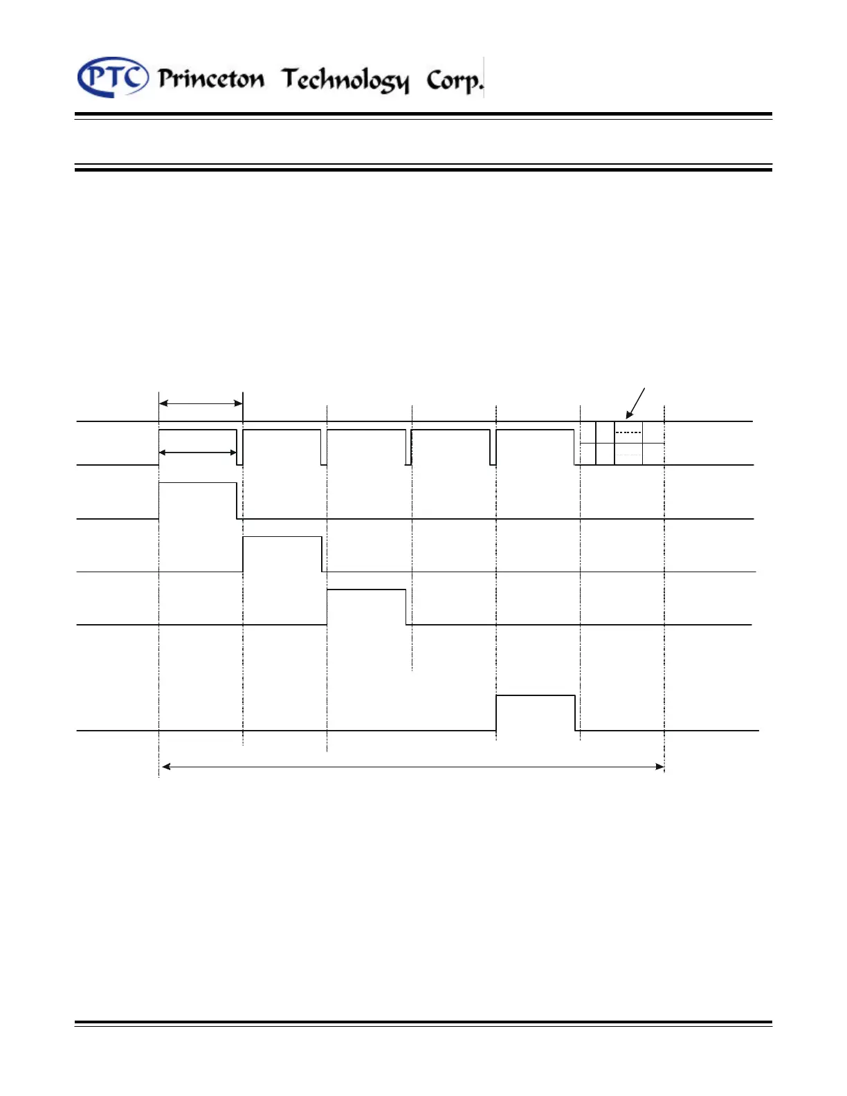
SCANNING AND DISPLAY TIMING
The Key Scanning and display timing diagram is given below. One cycle of key scanning consists of 2 frames.
The data of the 16 x 2 matrix is stored in the RAM.
Internal Operating Frequency (fosc) = 224/T
Figure 12: PT6315 Scanning & Display Timing Diagram
1 2 8
9 10 16
SGn
G1
G2
G3
T=500us
DISPLAY
Key Scan Data
Gn
1 Frame=Tx (n +1)
DISPLAY
T
Note: T is the width of Segment only