EasyManua.ls Logo

PTI security systems VP keypad controls entry - Page 34

PTI security systems VP keypad controls entry
40 pages
Print Icon
To Next Page IconTo Next Page
To Next Page IconTo Next Page
To Previous Page IconTo Previous Page
To Previous Page IconTo Previous Page
Loading...
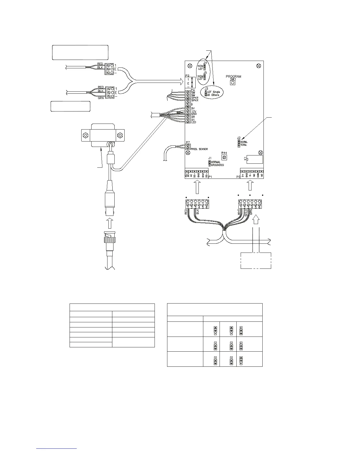
30 31
TO SPEAKER AND
CALL BUTTON (ONLY
KEYPAD W/ MAG
READER & KEYPAD
W/ INTERCOM)
SHIELD GND (SHIELD)
LED (ORN)
FROM (WIEGAND)
WIEGAND READER WIRING TABLE
DATA0 (GRN)
GROUND (BLK)
DATA1 (WHT)
+DC (RED)
D0
GND
D1
LED
5V
TO (P4 ON KEYPAD)
FROM
CONTROLLER
DATA
REFER TO GATE OPERATOR OR
DOOR STRIKE MANUFACTURER
INSTALLATION INSTRUCTIONS FOR
PROPER WIRING TO KEYPAD RELAY.
GATE
OPERATOR/
DOOR STRIKE
POWER & DATA FROM
POWER SUPPLY AND
CONTROLLER
LEF (EXCEPT SINGLE MASTER
STATION) AND ALL NEM
INTERCOM TYPES WIRING
LEF SINGLE MASTER
STATION WIRING
- OR -
POWER & DATA
TO OTHER AI
DEVICES
POWER
TO
OFFICE
TO
OFFICE
TO PRESENCE
SENSOR
SEE INTERCOM JUMPER
CONFIGURATION TABLE FOR
PROPER JUMPER PLACEMENT
END OF LINE
RESISTOR (LINE
TERMINATION)
INTERCOM TYPE JUMPER CONFIGURATION
INTERCOM JUMPER
CONFIGURATION TABLE
LEF (SINGLE
MASTER STATION)
LEF (ALL BUT
SINGLE MASTER
STATION)
NEM (ALL)
NEM
LEF
NEM
LEF
LEF Single
All Others
J3
NEM
LEF
NEM
LEF
LEF Single
All Others
J3
NEM
LEF
NEM
LEF
LEF Single
All Others
J3
J4 J5
J4 J5
J4 J5
TO VIDEO DISPLAY
EQUIPMENT
CAMERA
(OPTIONAL, ONLY
KEYPAD W/ MAG READER
& KEYPAD W/ INTERCOM)
TO WIEGAND READER
(SEE WIRING TABLE)
(DC POWER
CONNECTION
SHOWN)
RELAY
Figure 19

Related product manuals