EasyManua.ls Logo

Pullin Evolution Solar PES190 - Page 7

Default Icon
20 pages
Print Icon
To Next Page IconTo Next Page
To Next Page IconTo Next Page
To Previous Page IconTo Previous Page
To Previous Page IconTo Previous Page
Loading...
7
7
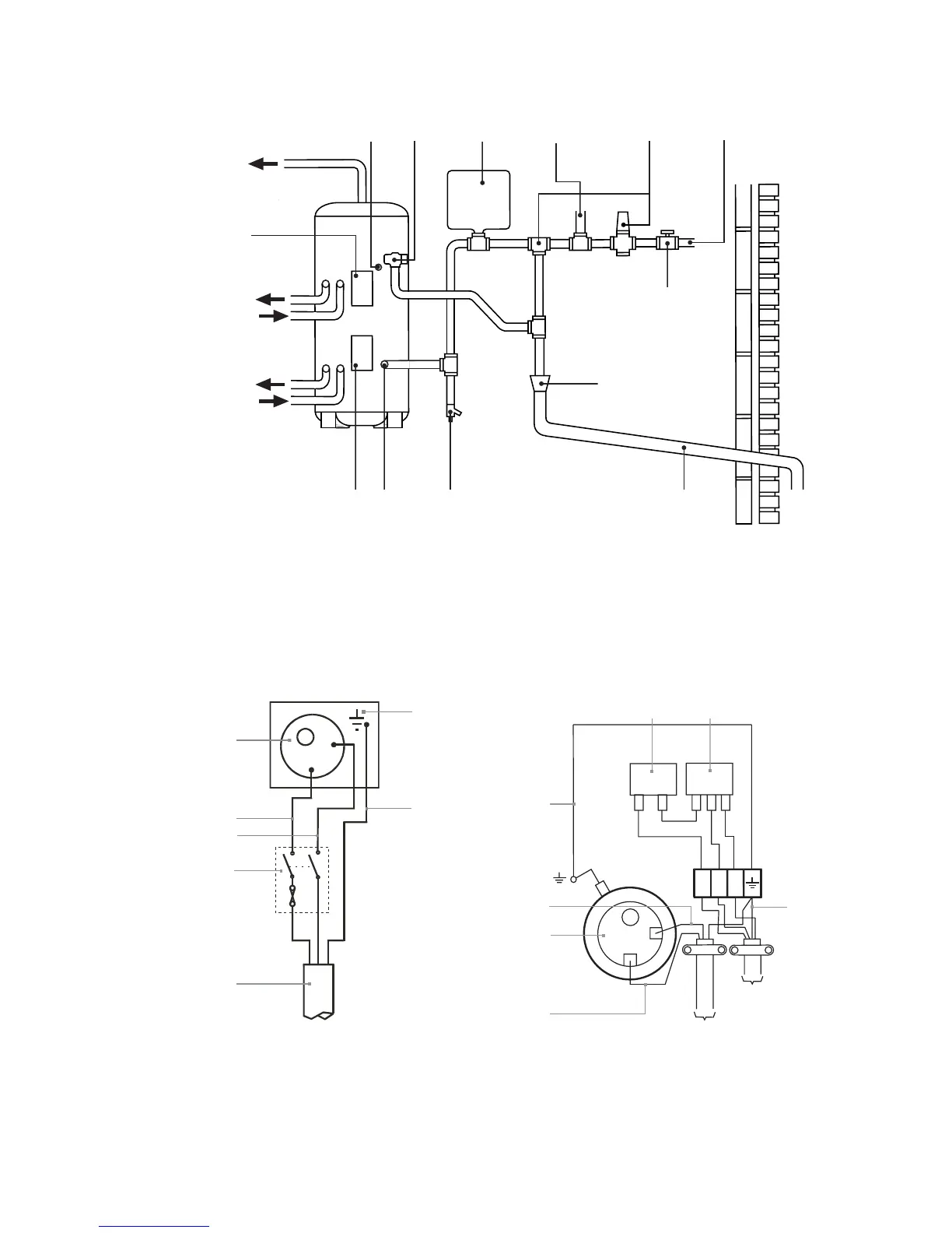
Fig. 5: Typical installation - schematic
Fig.6 Electrical Connections (Schematic)
DIRECT MODELS
AUXILLARY HEATING CONTROL
EARTH
CONNECTION
THERMOSTAT
FUSED (13A) DOUBLE
POLE ISOLATING
SWITCH
1.5mm² 3-CORE
HOFR SHEATHED
CABLE
Note: On models fitted with two elements each element must
be wired individually in accordance with the diagram above
A
B
BLUE
BROWN
GREEN/
YELLOW
1
2
GREEN/
YELLOW
13 AMP MAINS
SUPPLY. 1.5mm
2
MIN. CABLE SIZE
TO INDIRECT SYSTEM
CONTROLS JUNCTION
BOX
GREEN/
YELLOW
BROWN
BLUE
3
DIRECT
THERMOSTAT
B
A
1
1
2
2
3
INDIRECT
THERMOSTAT
INDIRECT THERMAL
CUT-OUT
EXPANSION
VESSEL
COLD WATER
COMBINATION
VALVE
(2-PIECE)
T&P RELIEF
VALVE
TO HOT
OUTLETS
MAINS
WATER
SUPPLY
ISOLATING
VALVE (NOT
SUPPLIED)
TUNDISH
DISCHARGE
PIPE
DRAIN COCK
(NOT SUPPLIED)
SOLAR PRIMARY
RETURN
SOLAR PRIMARY
FLOW
SOLAR
CONTROLS
HOUSING
INLET
BOOST ELEMENT/
AUX. CONTROL
HOUSING
NOTE: AUXILLARY HEATING COIL FITTED ON 190 TO 300 INDIRECT MODELS ONLY
BALANCED
COLD WATER
CONNECTION
(IF REQUIRED)
AUX. PRIMARY
RETURN
AUX. PRIMARY
FLOW
SECONDARY RETURN TAPPING
(IF REQUIRED - INDIRECT ONLY)