EasyManua.ls Logo

Pulsar PG7500 - Diagrams

Pulsar PG7500
27 pages
Print Icon
To Next Page IconTo Next Page
To Next Page IconTo Next Page
To Previous Page IconTo Previous Page
To Previous Page IconTo Previous Page
Loading...
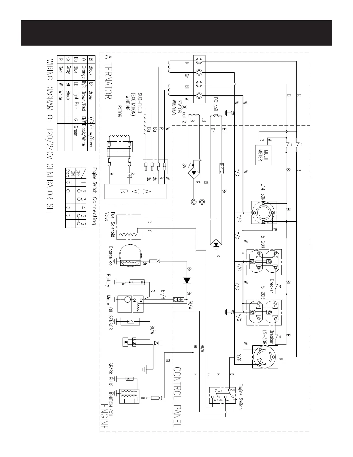
DIAGRAMS
25
Bl
GNAJ
M
+

Related product manuals