EasyManua.ls Logo

purecold 1PS4MA1 - Page 30

purecold 1PS4MA1
40 pages
Print Icon
To Next Page IconTo Next Page
To Next Page IconTo Next Page
To Previous Page IconTo Previous Page
To Previous Page IconTo Previous Page
Loading...
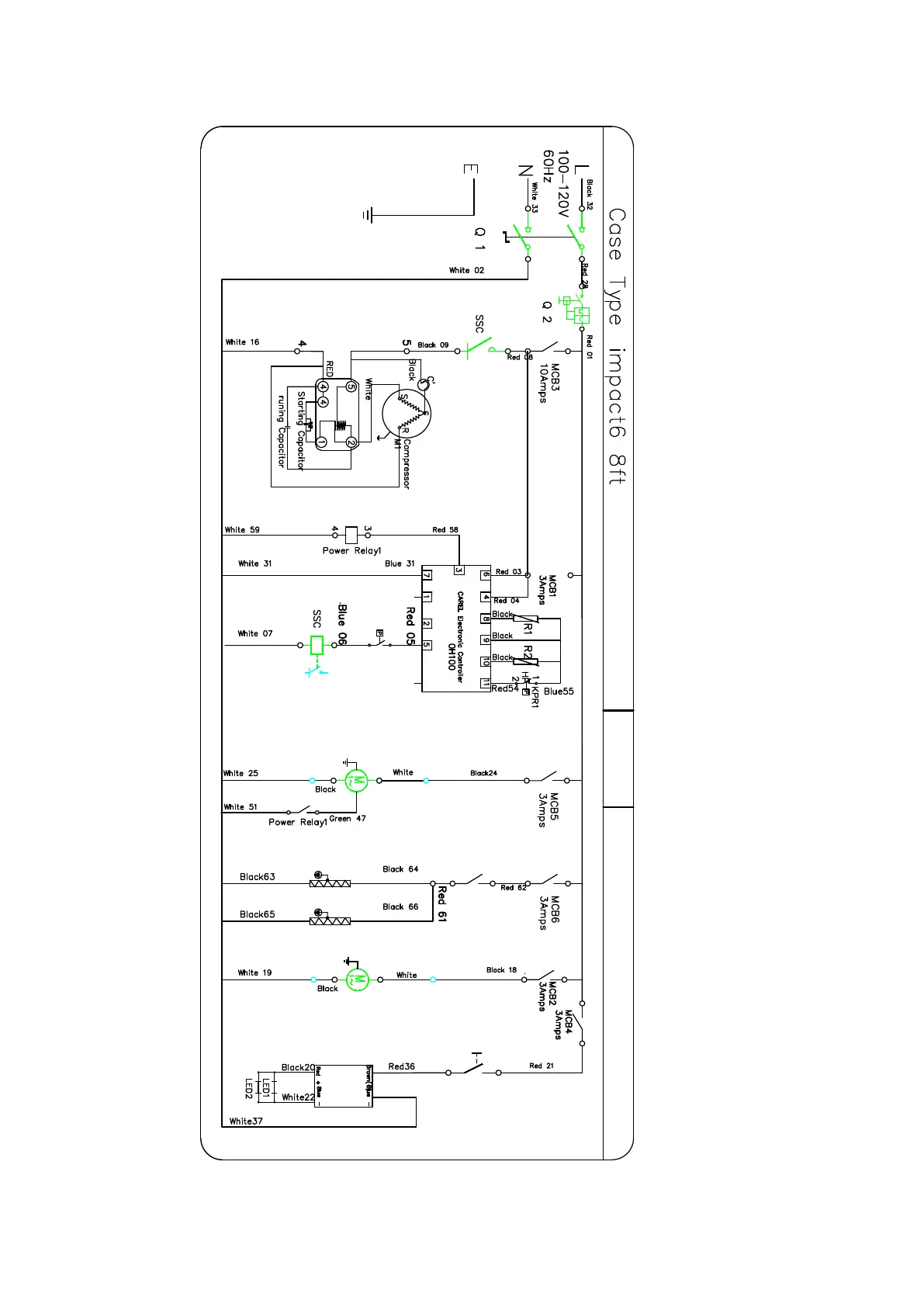
Pure Cold Impact 6 Installation, Operation &
Maintenance Manual
30
Drg No.
T1
L1
T3
L3
2
1
Load SwitchIsolator
4
6
1
0
PJEZC
KPR2
4
3
2
1
X19
X20
Condenser Fan
2
1
X11
X12
Evaporator Fans
S1
2
1
Light Switch
YSJ-20099
2
1
2
1
2
1
LP
M12~14
M211
X22
X21
X23
X24
过载保护器
Ballast
75W-24VDC
2
1
Door Heater (66W)
1
2
2
1
2
1
Door Heater (66W)
2
1
Door heater
Switch