EasyManua.ls Logo

pyromaster H33BDVRRN - Installation & Operating Instructions; Locating Your Fireplace

pyromaster H33BDVRRN
32 pages
Print Icon
To Next Page IconTo Next Page
To Next Page IconTo Next Page
To Previous Page IconTo Previous Page
To Previous Page IconTo Previous Page
Loading...
3
Pyromaster© H33BDVRRN/P
10004798
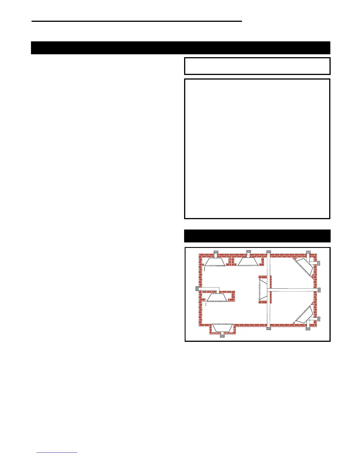
A)Flat on wall B)Cross corner C) **Island
D)*Room divider E)*Flat on wall corner F) Chase installation
Y) 6" minimum
Note (Fig. 1):
** Island (C) and Room Divider (D) installation is possible as long
as the horizontal portion of the vent system (X) does not exceed
20 feet (610cm). See details in Venting Section.
* When you install your Vermont Castings, Majestic Products
fireplace in(D) Room divider or (E) Flat on wall corner positions
(Y), a minimum of 6 inches (153mm) clearance must be main-
tained from the perpendicular wall and the front of the fireplace.
See (Y) in Fig. 1.
This gas appliance should be installed by a qualified installer
in accordance with local building codes and with current CSA-
B149.1 Installation codes for Gas Burning Appliances and
Equipment. For USA Installations follow local codes and/or the
current National Fuel Gas Code. ANSI Z223.1.
FOR SAFE INSTALLATION AND OPERATION PLEASE
NOTE THE FOLLOWING:
1 . This fireplace gives off high temperatures and should be
located out of high traffic areas and away from furniture
and draperies.
2. Children and adults should be alerted to the hazards of
high surface temperatures of this fireplace and should stay
away to avoid burns or ignition of clothing.
3. CAUTION: Due to high glass surface temperature children
should be carefully supervised when in the same room as
fireplace.
4. Under no circumstances should this fireplace be modified.
Parts removed for servicing should be replaced prior to
operating this fireplace again.
5. Installation and any repairs to this fireplace must be
performed by a qualified installer, service agency or gas
supplier. A professional service person should be con-
tacted to inspect this fireplace annually. Make it a practice
to have all of your gas fireplaces checked annually. More
frequent cleaning may be required due to excess lint and
dust from carpeting, bedding material, etc.
6. Control compartments, burners and air passages in this
fireplace should be kept clean and free of dust and lint.
Make sure the gas valve and pilot light are turned off
before you attempt to clean this fireplace.
7. The venting system (chimney) of this fireplace should be
checked at least once a year and if needed your venting
system should be cleaned.
8. Keep the area around your fireplace clear of combustible
materials, gasoline and other flammable vapor and liquids.
This fireplace should not be used as a drying rack for
clothing, nor should Christmas stockings or decorations be
hung on or around the fireplace.
9. Under no circumstances should any solid fuels (wood,
coal, paper or cardboard etc.) be used in this fireplace.
10.The flow of combustion and ventilation air must not be
obstructed in any way.
11.When fireplace is installed directly on carpeting, vinyl tile or
any combustible material other than wood, the fireplace
must be installed on a metal or wood panel extending the
full width and depth of the fireplace.
12.This fireplace requires adequate ventilation and
combustion air to operate properly.
13. This fireplace must not be connected to a chimney flue
serving a separate solid fuel burning fireplace.
14. When the fireplace is not in use it is recommended that the
gas valve be left in the OFF position.
IMPORTANT:
PLEASE REVIEW THE FOLLOWING CAREFULLY
Remove any plastic from trim parts before turning the
fireplace ON.
It is normal for fireplaces fabricated of steel to give off
some expansion and/or contraction noises during the
start up or cool down cycle. Similar noises are found
with your furnace heat exchanger or car engine.
It is not unusual for your CFM Harris Systems gas
fireplace to give off some odor the first time it is
burned. This is due to the curing of the paint and any
undetected oil from the manufacturing process.
Please ensure that your room is well ventilated
open all windows.
It is recommended that you burn your fireplace for at
least ten (10) hours the first time you use it. If the
optional fan kit has been installed, place the fan
switch in the “OFF” position during this time.
Installation & Operating Instructions
Locating Your Fireplace
This appliance has been approved for after-market
mobile home installations
Proposition 65 Warning: Fuels used in gas,
woodburning or oil fired appliances, and the products of
combustion of such fuels, contain chemicals known to the
State of California to cause cancer, birth defects and
other reproductive harm.
California Health & Safety Code Sec. 25249.6
Y
E
A
B
C
D
F
Y
B
X
X
LU584-1
Fig. 1 Locating Gas Fireplace.

Table of Contents

Related product manuals