EasyManua.ls Logo

Radiant RS 20 E 40/60 - Overall Dimensions

Radiant RS 20 E 40/60
24 pages
Print Icon
To Next Page IconTo Next Page
To Next Page IconTo Next Page
To Previous Page IconTo Previous Page
To Previous Page IconTo Previous Page
Loading...
Installation Manual
SYSTEM BOILER TA02A009A0703
3
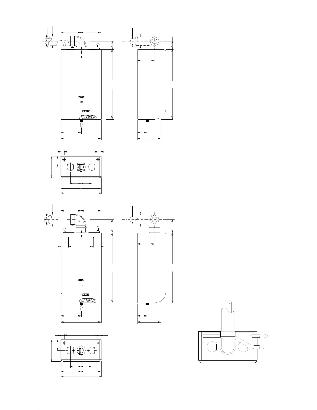
OVERALL DIMENSIONS
TYPE C WALL-MOUNTED BOILERS SEALED
COMBUSTION CIRCUIT:
Kit A
Horizontal coaxial exhaust flue system with 360°
rotation.
Allows fumes exhaust and air intake from
external wall.
N.B.: To insert a bend in the flue, reduce total
flue length by 0.8 m.
Kit A with vertical coaxial collar.
Horizontal coaxial exhaust flue system with
360° rotation.
Allows fumes exhaust and air intake from
external wall.
Example of horizontal coaxial flue KIT A with
insertion of a vertical coaxial collar.
N.B.: To insert a bend in the flue, reduce total
flue length by 0.8 m.
If either flow or return pipe needs to be sided
across top of the boiler the additional part
number 37015LP packed separately needs to be
fitted on top of boiler flue outlet before fitting
elbow, this will allow pipework to run under flue
pipe. (See. Fig.1)
Fig. 1
137
260
35
G = GAS
M = CENTRAL HEATING FLOW
R = CENTRAL HEATING RETURN
450
120
=
120
=
3/4"3/4"
380
KEY
35
450
225
G
1/2"
790
260
67
790
85
R
100
60
260
137
35
280 85
3/4"
3/4"
= =
M
160
182
60
100
160
R = CENTRAL HEATING RETURN
M = CENTRAL HEATING FLOW
G = GAS
==
450
120 120
3/4"3/4"
380
KEY
35
R
3/4"
100
60
G
450
225
1/2"
790
260
67
790
M
95
3/4"
==
182
60
100
95

Related product manuals