EasyManua.ls Logo

Radiant RS 20 E 40/60 - Combustion Circuit

Radiant RS 20 E 40/60
24 pages
Print Icon
To Next Page IconTo Next Page
To Next Page IconTo Next Page
To Previous Page IconTo Previous Page
To Previous Page IconTo Previous Page
Loading...
Installation manual
SYSTEM BOILER TA02A101.B1203
4
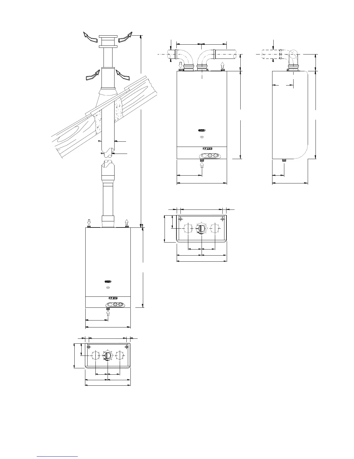
Kit B.
Double exhaust/intake flue system with 360° rotation.
The twin tube system allows fumes exhaust into a flue duct
and air intake from outside.
N.B.:
To insert a 90° bend in the flue, reduce total flue length by 1.5 m.
To insert a 45° bend in the flue, reduce total flue length by 1.2 m.
TYPE C WALL-MOUNTED BOILERS SEALED
COMBUSTION CIRCUIT:
Kit C.
Vertical coaxial flue kit system with intake / exhaust pipes
Ø 118/80
R = CENTRAL HEATING RETURN
M = CENTRAL HEATING FLOW
KEY
G = GAS
35
M
225
137
260
=
3/4"
35
120
440
120
=
3/4"
1/2"
450
370
G
R
3/4" 3/4"
80
118
790
max. 3000
R = CENTRAL HEATING RETURN
G = GAS
M = CENTRAL HEATING FLOW
KEY
790
137
35
260
35370
120
440
=
3/4"
120
=
3/4"
1/2"
225
450
G
3/4"
80
R
=
145
M
3/4"
=
790
67
260
182
80
145

Related product manuals